Vente
Appartement
à
La Roquette-sur-Siagne
459 000 €
La Roquette-sur-Siagne (06550)
iad France - Claudia Priolo (07 85 66 49 39) vous propose : LA ROQUETTE SUR SIAGNE _ Appartement neuf 3 pièces avec terrasse et jardin.
FRAIS DE NOTAIRE OFFERT POUR UNE DURÉE LIMITÉE!!!
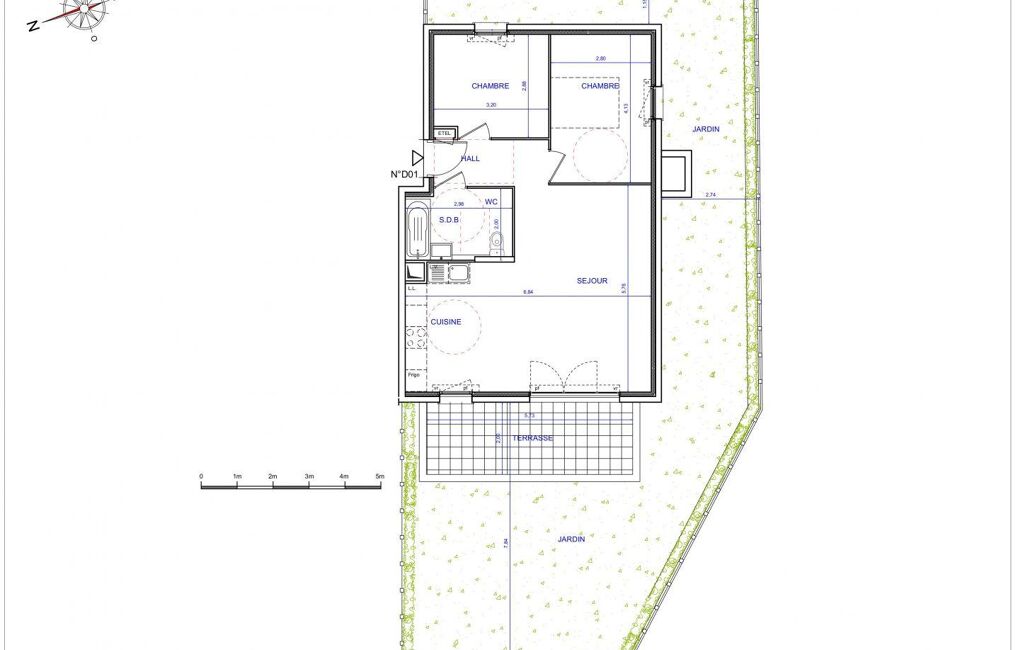
Au sein d’une résidence neuve à taille humaine, dans un environnement calme et verdoyant, découvrez cet appartement 3 pièces de 63 m² environ.
Il se compose d’une pièce de vie avec séjour et cuisine ouverte, de deux chambres, ainsi que d’une salle de bains avec WC, agencement conforme aux plans.
L’espace extérieur offre une terrasse couverte de 12 m² environ , un jardin privatif de 87 m² environ qui se prolonge harmonieusement tout autour de l’appartement jusqu’aux chambres, offrant une belle continuité entre les espaces intérieurs et extérieurs.
Une place de stationnement en sous-sol est incluse. Des emplacements supplémentaires peuvent être proposés en option, selon disponibilité.
Résidence intimiste d’un seul étage, conçue pour préserver la tranquillité et offrir une agréable sensation d’espace, avec un esprit proche de celui d’une villa.
La proximité du village et de ses commodités (commerces, écoles, services) permet de concilier calme et vie quotidienne facilitée.
Les atouts du neuf :
– Frais de notaire réduits et offerts pour une durée limitée
– Confort moderne et isolation renforcée, favorisant des consommations maîtrisées
– Logement conforme aux normes actuelles, offrant sérénité et durabilité dans le temps.
Livraison prévisionnelle au deuxième trimestre 2026.
Dossier complet et informations complémentaires sur demande.
Honoraires d’agence à la charge du vendeur. Bien non soumis au DPE. Les informations sur les risques auxquels ce bien est exposé sont disponibles sur le site Géorisques : www.georisques.gouv.fr. La présente annonce immobilière a été rédigée sous la responsabilité éditoriale de Mme Claudia Priolo EI (ID 48747), mandataire indépendant en immobilier (sans détention de fonds), agent commercial de la SAS I@D France immatriculé au RSAC de grasse sous le numéro 888006152, titulaire de la carte de démarchage immobilier pour le compte de la société I@D France SAS.
Retrouvez tous nos biens sur notre site internet. www.iadfrance.fr
Mandat : 1935293-9
Diagnostic de Performance Énergétique (DPE)
Plus d'informations
-
Descriptif
- Terrasse
- Nb. Parking : 1
- Nb. de pièces : 3
-
Conditions
- Honoraires à charge de : vendeur
-
Superficies
- Surface habitable : 62 m²
Localisation
Contactez nous
Pour plus d'informations sur cette annonce, n'hésitez pas à nous contacter