Vente
Appartement
à
Sainte-Geneviève-des-Bois
248 500 €
Sainte-Geneviève-des-Bois (91700)
iad France - Stéphane Gervasi (06 80 65 75 65) vous propose : *Programme NEUF * Avenue Gabriel Péri, Sur le secteur 'centre ville' de Sainte Geneviève des Bois proche de toutes les commodités, dans une petite Résidence de Standing de 9 appartements aux normes RT2020 et aux prestations soignées qui sera livrée au premier Trimestre 2027.
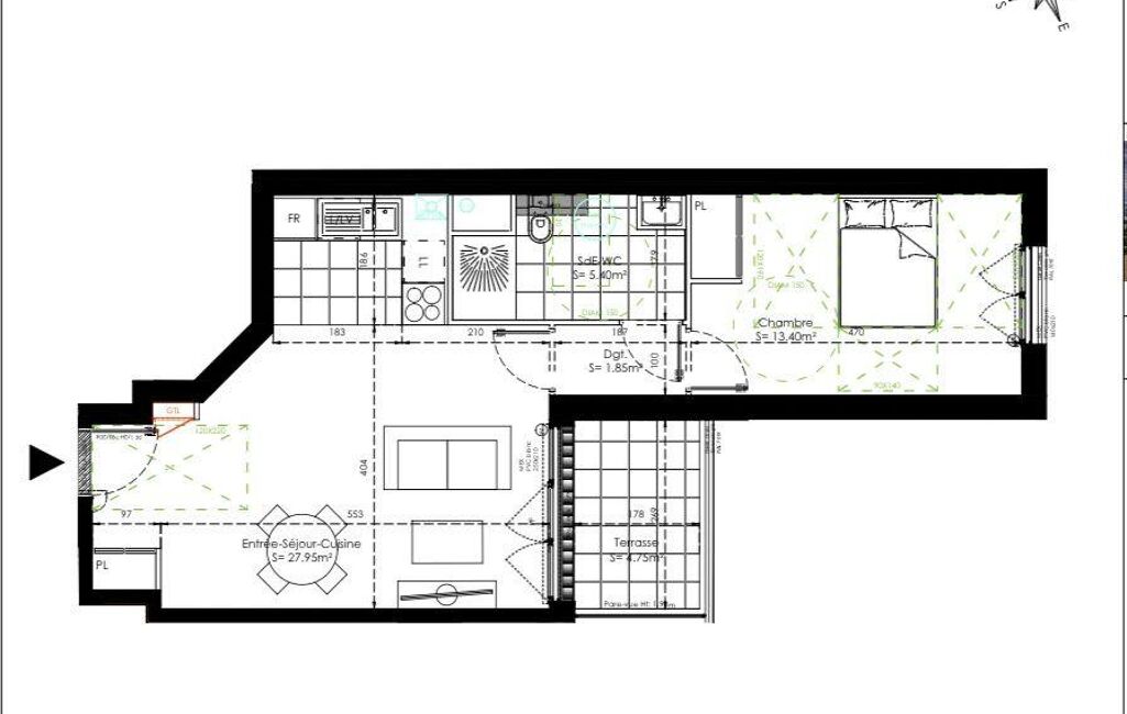
Un appartement de type F2 de 48,60 m2 environ habitable composé d'une pièce de vie de 28 m2 environ avec coin cuisine , d'un couloir desservant une salle de douche équipée avec WC et une grande chambre de 13,50 mètres. Balcon de 4,75m2 environ .
+ Chauffage / eau chaude individuels au Gaz + Faibles Charges ++ Frais de notaire réduits et Prêt à taux zéro ++
D'autres lots disponibles.
Contacter moi pour plus de détail.
Honoraires d’agence à la charge du vendeur. Bien non soumis au DPE. Les informations sur les risques auxquels ce bien est exposé sont disponibles sur le site Géorisques : www.georisques.gouv.fr. La présente annonce immobilière a été rédigée sous la responsabilité éditoriale de M. Stéphane Gervasi EI (ID 16918), mandataire indépendant en immobilier (sans détention de fonds), agent commercial de la SAS I@D France immatriculé au RSAC de EVRY sous le numéro 511705873, titulaire de la carte de démarchage immobilier pour le compte de la société I@D France SAS.
Retrouvez tous nos biens sur notre site internet. www.iadfrance.fr
Mandat : 1923589-6
Diagnostic de Performance Énergétique (DPE)
Plus d'informations
-
Equipement
- Câble TV
- Digicode
- Placards
- Chauffage : collectif gaz radiateur
- Interphone
-
Descriptif
- Terrasse
- Ascenseur
- Nb. de pièces : 2
-
Superficies
- Surface du balcon : 4 m²
- Surface habitable : 48 m²
-
Conditions
- Honoraires à charge de : vendeur
Localisation
Contactez nous
Pour plus d'informations sur cette annonce, n'hésitez pas à nous contacter