Vente
Appartement
à
Le Cannet
1 361 000 €
Le Cannet (06110)
iad France - Sarah Rozière (06 99 86 19 42) vous propose : Horizon Croisette – Appartement 4 pièces d’exception face à la baie de Cannes.
Sur les hauteurs résidentielles du Cannet, dans un domaine sécurisé niché au cOEur d’une oliveraie préservée, la résidence Horizon Croisette déploie un cadre de vie unique, à quelques minutes seulement de la mythique Croisette et des plages de Cannes
Un appartement raffiné et lumineux :
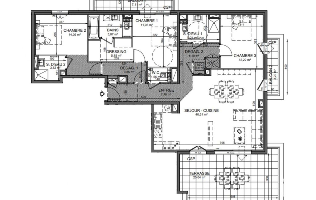
Situé au 2e étage, orienté Sud-Est, cet appartement de prestige développe 117 m² environ habitables :
- Un vaste séjour/cuisine de 41 m² environ ouvert sur l’extérieur par de larges baies vitrées.
- 3 chambres élégantes, dont une suite parentale avec dressing et salle de bains.
- Une entrée et des dégagements optimisés.
De superbes espaces extérieurs prolongent cet appartement :
- Une terrasse de 26 m² environ, idéale pour des réceptions face à la Méditerranée.
- Deux balcons
Des prestations haut de gamme :
- Baies vitrées toute hauteur avec volets roulants motorisés.
- Carrelage grand format et finitions soignées.
- Climatisation réversible par pompe à chaleur.
- Résidence sécurisée, parc paysager méditerranéen et piscine.
- Certification NF Habitat, gage de confort et de performance énergétique.
Annexes privatives :
- 3 box fermés
-1 cave privative
Un emplacement rare et prisé :
- À moins de 4 km de la Croisette, du Vieux-Port et des plages.
- Accès rapide à l’A8, à la gare TGV de Cannes et à l’aéroport international de Nice.
- Quartier résidentiel recherché, entouré de villas et de petites résidences haut de gamme.
Un véritable belvédère panoramique sur la baie de Cannes et les îles de Lérins.
Un appartement rare, conjuguant volumes généreux, prestations haute couture et adresse prestigieuse, pour une clientèle en quête d’exclusivité et de raffinement.
Horizon Croisette, c’est plus qu’un appartement : c’est l’art de vivre azuréen dans ce qu’il a de plus intemporel et prestigieux.
N’hésitez pas à me contacter pour plus d’informations ou pour un accompagnement sur mesure.
Honoraires d’agence à la charge du vendeur. Bien non soumis au DPE. Les informations sur les risques auxquels ce bien est exposé sont disponibles sur le site Géorisques : www.georisques.gouv.fr. La présente annonce immobilière a été rédigée sous la responsabilité éditoriale de Mlle Sarah Rozière EI (ID 83696), mandataire indépendant en immobilier (sans détention de fonds), agent commercial de la SAS I@D France immatriculé au RSAC de Clermont-Ferrand sous le numéro 978616993, titulaire de la carte de démarchage immobilier pour le compte de la société I@D France SAS.
Retrouvez tous nos biens sur notre site internet. www.iadfrance.fr
Mandat : 1828539-1
Diagnostic de Performance Énergétique (DPE)
Plus d'informations
-
Descriptif
- Cave
- Étage du bien : 2eme
- Terrasse
- Ascenseur
- Nbre. d'étages : 3
- Nbre. de chambres : 3
- Nb. de pièces : 4
-
Equipement
- Alarme
- Digicode
- Interphone
- Climatisation
-
Conditions
- Honoraires à charge de : vendeur
-
Superficies
- Surface habitable : 117 m²
Localisation
Contactez nous
Pour plus d'informations sur cette annonce, n'hésitez pas à nous contacter