Vente
Appartement
à
Soissons
124 500 €
Soissons (02200)
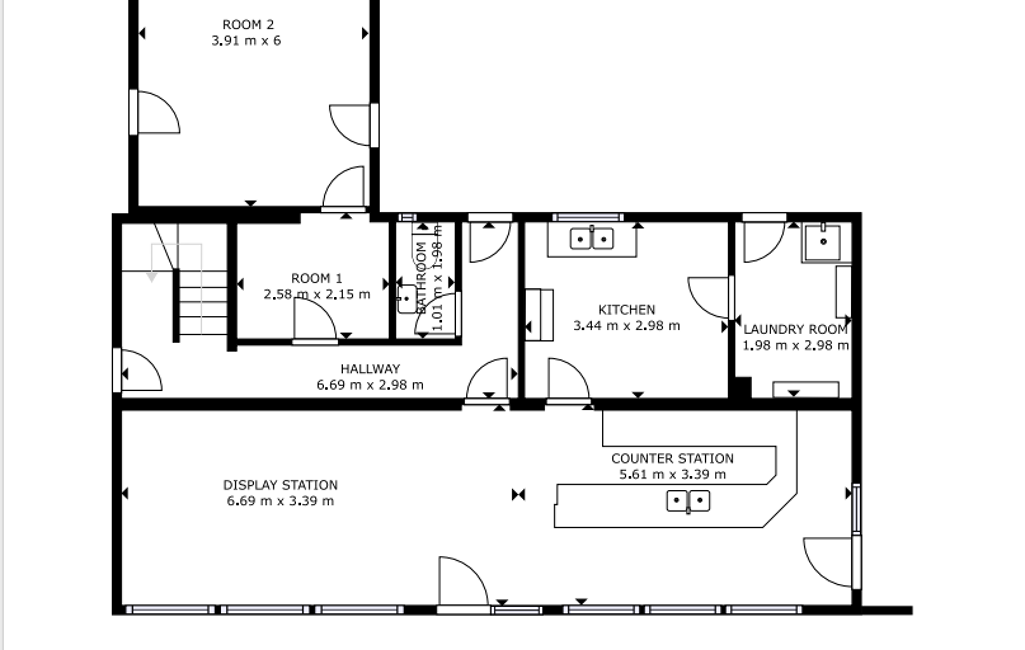
iad France - Julie Poteau vous propose: Découvrez cet ancien local commercial de plain-pied, d’une surface d’environ 100 m², idéal pour l’installation d’une profession libérale, d’un cabinet ou d’un espace de bureaux.
Situé en rez-de-chaussée, il offre une configuration pratique et facilement accessible.
L’intérieur est à réaménager entièrement, laissant une totale liberté d’agencement selon vos besoins et votre activité. Une belle opportunité pour créer un espace sur-mesure.
À l’arrière du bien, vous bénéficierez d’un jardin privatif.
Points forts :
94m² exploitables
Ancien local commercial
Situé en RDC / plain-pied
Idéal profession libérale
Gros potentiel d’aménagement
Pour plus d’informations ou organiser une visite, n’hésitez pas à me contacter.
Honoraires d'agence à la charge du vendeur.
Information d'affichage énergétique sur ce bien : classe ENERGIE E indice 280 et classe CLIMAT F indice 60. Les informations sur les risques auxquels ce bien est exposé, y compris l'obligation légale de débroussaillement, sont disponibles sur le site Géorisques : http://www.georisques.gouv.fr.
La présente annonce immobilière a été rédigée sous la responsabilité éditoriale de Mme Julie Poteau mandataire indépendant en immobilier (sans détention de fonds), agent commercial de la SAS I@D France immatriculé au RSAC de SOISSONS sous le numéro 939895074, titulaire de la carte de démarchage immobilier pour le compte de la société I@D France SAS.
Mandat : 1893855
Diagnostic de Performance Énergétique (DPE)
Plus d'informations
-
Descriptif
- Nbre. d'étages : 1
- Nb. de pièces : 4
-
Equipement
- Chauffage : individuel gaz radiateur
-
Etat
- Année de construction : 1972
-
Conditions
- Honoraires à charge de : vendeur
-
Superficies
- Surface habitable : 95 m²
Localisation
Contactez nous
Pour plus d'informations sur cette annonce, n'hésitez pas à nous contacter