Vente
Maison
à
Le Castellet
1 395 000 €
Le Castellet (83330)
iad France - Adonay Bernerd vous propose: Propriété d’Exception avec Vue Panoramique et Piscine – Le Castellet
Découvrez cette somptueuse demeure, idéalement située à seulement 10 minutes à pied du village médiéval du Castellet, classé parmi les 'Plus Beaux Villages de France'. Nichée au cOEur d’un écrin de verdure de plus de 5000 m², elle offre un cadre idyllique avec une vue imprenable. Entièrement rénovée en 2023 avec des matériaux haut de gamme, cette propriété allie avec élégance charme authentique, confort absolu et prestations haut de gamme.
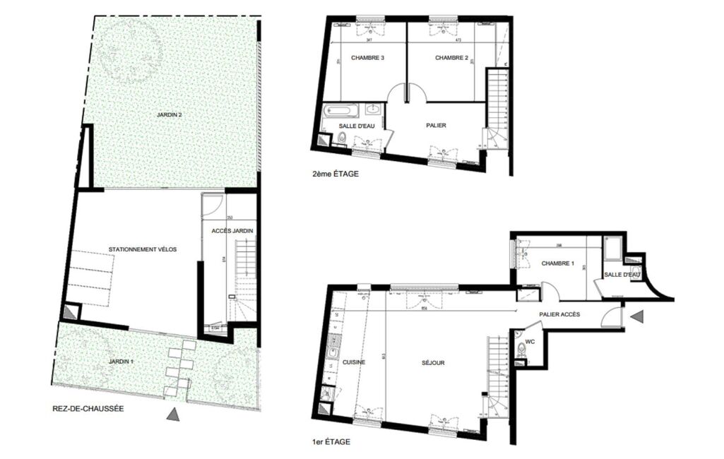
Édifiée sur trois niveaux, cette demeure de 423 m² de plancher dont 294 m² habitables (loi Carrez), offre un cadre de vie unique et modulable.
En effet, elle peut être divisée en trois logements distincts ou conservée en une seule et même habitation.
La partie principale, baignée de lumière grâce à ses nombreuses ouvertures, se compose d’un vaste séjour de 40 m² avec une cheminée sur deux niveaux, conférant un cachet indéniable à l’espace. Une mezzanine de 16 m² surplombe ce séjour chaleureux. La cuisine spacieuse, entièrement équipée, s’ouvre sur une grande terrasse de 70 m² exposée plein sud, idéale pour des moments de détente en extérieur.
L’espace nuit comprend trois chambres, une salle de bains, une salle d’eau et des WC.
Les combles de 88 m² sont aménageables avec la possibilité de rehausser la toiture pour créer encore plus d’espace !
Au niveau inférieur, vous trouverez un magnifique T2/T3, lumineux, composé d’un séjour avec cuisine ouverte, d’un bureau et d’une suite parentale avec salle de bains et WC. Vous apprécierez l' accès direct à la piscine exposée plein sud.
Un studio de 20 m², parfaitement aménagé avec coin cuisine, salle d’eau et WC vient compléter l'espace. Idéal pour accueillir famille, amis ou pour un investissement locatif, ces deux logements disposent d’entrées indépendantes, mais sont également reliés à la maison principale via l'escalier intérieur.
L’extérieur de la propriété offre un cadre enchanteur avec une piscine au sel de 10 x 4 m entourée de verdure, un jardin paysager agrémenté d’un cabanon de berger idéal pour le rangement, ainsi qu’une agréable cuisine d’été permettant de savourer des repas en plein air. Une vaste terrasse ombragée avec armature en fer forgé vient compléter cet espace de détente. Côté praticité, un garage spacieux de 60 m² et de très nombreux stationnements facilitent le quotidien. La maison bénéficie également d’équipements haut de gamme, incluant un système domotique, la climatisation intégrale, une panic room et un dispositif de sécurité performant avec alarme, interphone et porte blindée.
Idéalement située à proximité des commodités : écoles à 10 minutes, autoroute à 7 minutes, plages de Bandol et Saint-Cyr à 15 minutes. Vous profiterez du calme et de la sérénité des lieux. Cette propriété est un bien rare qui séduira les amateurs de nature et d’authenticité.
Mandat : 1926226
Diagnostic de Performance Énergétique (DPE)
Plus d'informations
-
Descriptif
- Terrasse
- Nbre. d'étages : 3
- Nbre. de chambres : 6
- Nb. de pièces : 9
-
Equipement
- Alarme
- Cheminée
- Interphone
-
Superficies
- Superficie terrain : 5100 m²
- Surface habitable : 294 m²
-
Extérieur
- Piscine
-
Etat
- Année de construction : 1992
-
Conditions
- Honoraires à charge de : vendeur
Localisation
Contactez nous
Pour plus d'informations sur cette annonce, n'hésitez pas à nous contacter