Vente
Terrain
à
Terssac
70 000 €
Terssac (81150)
Logis conseil vous propose un terrain de 650 m² idéalement situé à TERSSAC, plat et proche de toutes commodités.
Ce terrain se situe dans un lotissement, il est totalement viabilisé disponible de suite.
Nous vous proposons d'étudier votre projet sur mesure!!!!
N'hésitez pas à nous contacter au O625587732
NICOLAS BIGOT.
Le coût du projet est basé sur la construction d'une maison réalisée par LOGIS CONSEIL comprenant terrain, sur un terrain proposé par nos partenaires fonciers sous réserve de disponibilité.
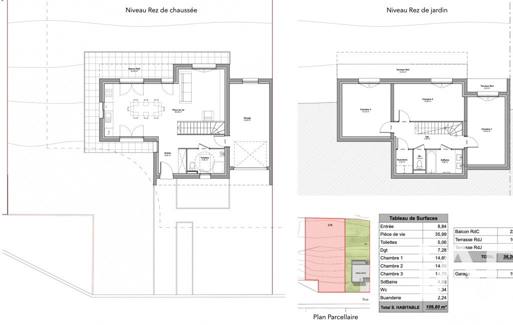
D'autres terrains disponibles, photos en exemple et non contractuelles.
Mandat : NB08
Plus d'informations
-
Conditions
- Date disponibilité : immédiate
- Prix hors honoraires acquéreur : 70 000 €
- Honoraires à charge de : vendeur
-
Environnement
- Calme
-
Superficies
- Superficie terrain : 650 m²
Localisation
Contactez nous
Pour plus d'informations sur cette annonce, n'hésitez pas à nous contacter
Logis Conseil Construction
Annonce 8224 /
84040