Vente
Appartement
à
Issy-les-Moulineaux
1 400 000 €
Issy-les-Moulineaux (92130)
iad France - Sarah Rozière (06 99 86 19 42) vous propose : Appartement T5 avec terrasse et jardin à Issy-les-Moulineaux.
Idéalement située rue Baudin, à Issy-les-Moulineaux, la résidence Quiétude s’intègre harmonieusement dans un quartier résidentiel et verdoyant, à proximité immédiate de Paris. Entre modernité et sérénité, cette adresse conjugue architecture élégante, qualité environnementale et cadre de vie paisible au cOEur d’un écrin végétalisé. Disponible 2027.
Un appartement raffiné :
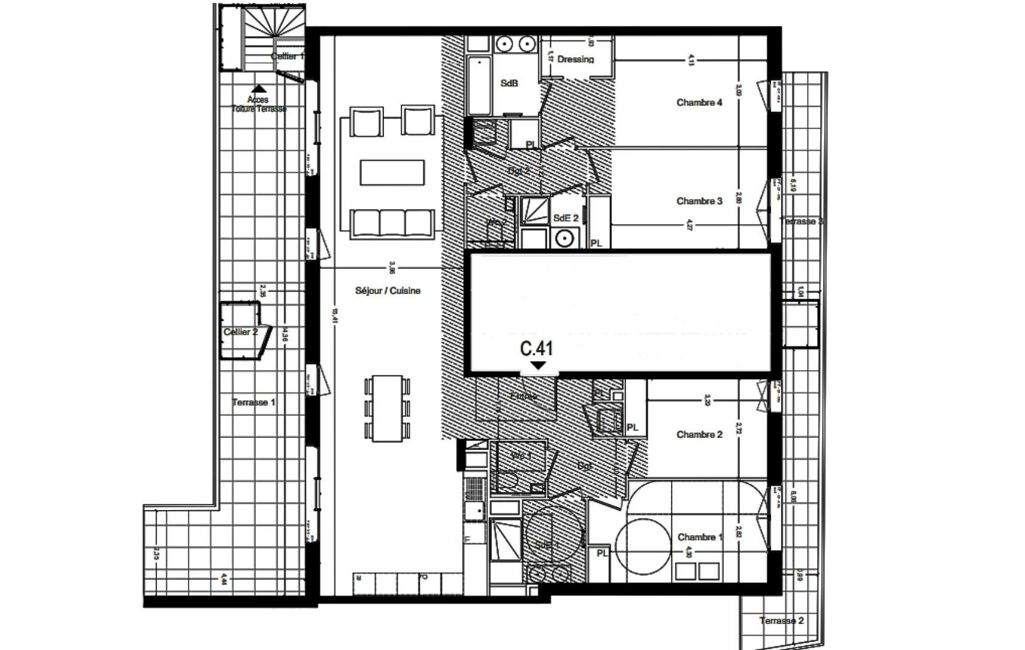
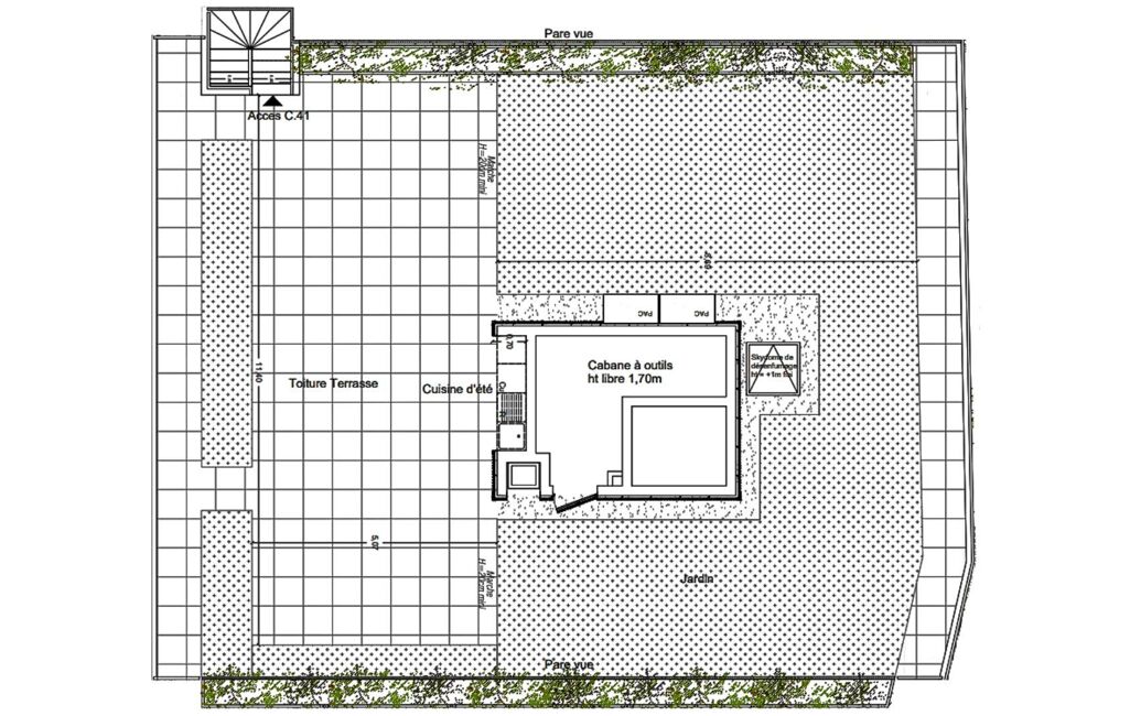
Situé au 3 ème étage, cet appartement 5 pièces traversant de 112 m² environ habitables se prolonge par deux terrasses, une de 35 m² environ et une de 7 m² environ.
- Séjour/cuisine spacieux de 42 m² environ.
- Quatre chambres, dont une suite parentale avec salle d’eau privative.
- Salle de bains moderne et wc séparés.
- Annexes incluses : une cave et deux parkings intérieurs.
De belles prestations :
- Pompe à chaleur réversible avec plancher chauffant/refroidissant pour un bien-être optimal toute l’année.
- Volets roulants motorisés et menuiseries aluminium double vitrage.
- Porte palière blindée A2P, vidéophone, accès sécurisé par badge Vigik.
- Espaces verts paysagers, ascenseur et local vélos.
L’art de vivre à Issy-les-Moulineaux :
- À 10 min à pied du métro Mairie d’Issy (ligne 12) et 11 min de la gare de Clamart.
- Tramway T2 et RER C accessibles en quelques minutes.
- Proximité du parc Henri Barbusse, des écoles, commerces et infrastructures sportives.
- Quartier calme et résidentiel, à deux pas des berges de Seine et de la forêt de Meudon.
N’hésitez pas à me contacter pour plus d’informations ou pour un accompagnement sur mesure.
Honoraires d’agence à la charge du vendeur. Bien non soumis au DPE. Les informations sur les risques auxquels ce bien est exposé sont disponibles sur le site Géorisques : www.georisques.gouv.fr. La présente annonce immobilière a été rédigée sous la responsabilité éditoriale de Mlle Sarah Rozière EI (ID 83696), mandataire indépendant en immobilier (sans détention de fonds), agent commercial de la SAS I@D France immatriculé au RSAC de Clermont-Ferrand sous le numéro 978616993, titulaire de la carte de démarchage immobilier pour le compte de la société I@D France SAS.
Retrouvez tous nos biens sur notre site internet. www.iadfrance.fr
Mandat : 1867090-1
Diagnostic de Performance Énergétique (DPE)
Plus d'informations
-
Descriptif
- Cave
- Étage du bien : 3eme
- Terrasse
- Ascenseur
- Nbre. d'étages : 3
- Nbre. de chambres : 4
- Nb. Parking : 1
- Nb. de pièces : 5
-
Equipement
- Câble TV
- Digicode
- Interphone
- Climatisation
-
Conditions
- Honoraires à charge de : vendeur
-
Superficies
- Surface habitable : 112 m²
Localisation
Contactez nous
Pour plus d'informations sur cette annonce, n'hésitez pas à nous contacter