Vente
Studio
à
Ploemeur
269 000 €
Ploemeur (56270)
iad France - Mickaël Hellegouarch vous propose: En exclusivité ! Charmant studio rénové avec balcon, parking et cave à Lomener avec vue mer !
Découvrez ce ravissant studio lumineux situé à Lomener sur la commune de Ploemeur, à seulement quelques minutes à pied des plages et des commodités.
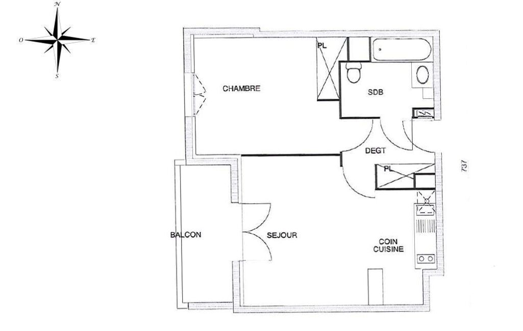
Ce studio, situé au 1er étage d'une résidence de 2 étages d'une superficie de 29m2, offre un espace de vie bien agencé et optimisé. La pièce principale, comprenant la cuisine ouverte sur le séjour, bénéficie d'une belle luminosité avec son exposition plein Sud. Un aménagement sur-mesure comprenant un lit escamotable avec bibliothèque et meuble TV vous permet de profiter pleinement du séjour en journée et de la partie nuit en soirée. Le balcon privé sans vis-à-vis est parfait pour profiter d'un moment de détente en plein air avec sa vue mer avec la possibilité à termes de réaliser une véranda fermée pouvant ainsi augmenter la surface habitable.
La cuisine ouverte équipée et fonctionnelle, sera un atout au quotidien. La salle d'eau moderne est équipée d'une grande douche cabine, d'un WC suspendu et d'un espace buanderie.
En sus, bénéficiez d'un parking aérien privatif pour votre véhicule et d'une cave privative pour vos besoins de rangements. Vous pourrez également profiter de la tranquillité d'une résidence sécurisée avec digicode. L'immeuble de 2 étages est en bon état général, datant de 1981.
La situation géographique de ce bien est idéale, avec une exposition plein sud offrant une luminosité appréciable. Le quartier calme et résidentiel vous garantit un cadre de vie agréable.
Pour les amoureux de la nature, le studio est proche de nombreux espaces verts et sentiers de promenade.
Ne manquez pas cette opportunité rare sur le marché !
La presente annonce immobiliere vise 3 lots situés dans une copropriété de 135 lots au total et ne faisant l'objet d'aucune procédure en cours citée à l'article L. 721-1 du code de la construction et de l'habitation. Montant moyen mensuel de charges déclaré par le vendeur : 53.33€ par mois (soit 640 € annuel). Honoraires d'agence à la charge de l'acquéreur. Prix honoraires inclus : 269000 euros. Prix hors honoraires : 260000 euros. Honoraires TTC à la charge de l'acquéreur (3,46% du prix du bien hors honoraires) : 9000 euros.
Information d'affichage énergétique sur ce bien : classe ENERGIE C indice 165 et classe CLIMAT A indice 6. Les informations sur les risques auxquels ce bien est exposé, y compris l'obligation légale de débroussaillement, sont disponibles sur le site Géorisques : http://www.georisques.gouv.fr.
La présente annonce immobilière a été rédigée sous la responsabilité éditoriale de M Mickaël Hellegouarch mandataire indépendant en immobilier (sans détention de fonds), agent commercial de la SAS I@D France immatriculé au RSAC de LORIENT sous le numéro 490618410, titulaire de la carte de démarchage immobilier pour le compte de la société I@D France SAS.
Mandat : 1923119
Diagnostic de Performance Énergétique (DPE)
Plus d'informations
-
Descriptif
- Étage du bien : 1er
- Nbre. d'étages : 2
- Nb. de pièces : 1
-
Conditions
- Honoraires : 9 000 €
- Prix hors honoraires acquéreur : 260 000 €
- Honoraires à charge de : acquéreur
-
Loi ALUR
- Copropriété
- Nombre de lots de la copropriété : 135
- Moyenne de la quote part(an) : 640 €
-
Equipement
- Digicode
- Chauffage : individuel electrique radiateur
-
Superficies
- Surface du balcon : 4 m²
- Surface habitable : 29 m²
-
Etat
- Année de construction : 1981
Localisation
Contactez nous
Pour plus d'informations sur cette annonce, n'hésitez pas à nous contacter