Vente
Maison de village
à
Marmande
89 000 €
Marmande (47200)
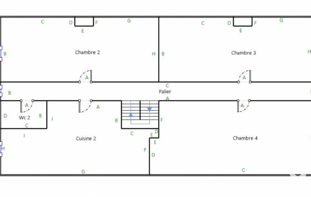
iad France - Hong Yin vous propose: Située à deux pas du centre de Marmande et de tous les commerces (boulangerie, pharmacie, écoles…), cette maison de ville lumineuse et pleine de potentiel offre 147 m² habitables répartis sur trois niveaux, avec un jardin arboré de 550 m² à l’arrière.
Elle se compose de :
🔹 Au rez-de-chaussée : une entrée avec couloir, un séjour / salle à manger spacieux et lumineux, une cuisine indépendante, une chambre, une salle de bains et un WC.
🔹 À l’étage : quatre chambres confortables.
🔹 En sous-sol : un sous-sol complet de plain-pied, offrant de belles possibilités d’aménagement (atelier, rangement, buanderie…).
Vous profiterez également d’une terrasse indépendante donnant sur le jardin, idéal pour les repas en extérieur.
La maison est raccordée au tout-à-l’égout et ne fait pas partie d’une copropriété.
📏 Surface habitable : 147 m²
🌿 Surface terrain : 627 m² (dont 550 m² de jardin)
N'hésitez pas à me contacter pour obtenir plus d'information.
Honoraires d'agence à la charge du vendeur.
Bien non soumis au DPE. Les informations sur les risques auxquels ce bien est exposé, y compris l'obligation légale de débroussaillement, sont disponibles sur le site Géorisques : http://www.georisques.gouv.fr.
La présente annonce immobilière a été rédigée sous la responsabilité éditoriale de Mme Hong Yin mandataire indépendant en immobilier (sans détention de fonds), agent commercial de la SAS I@D France immatriculé au RSAC de Paris sous le numéro 887581288, titulaire de la carte de démarchage immobilier pour le compte de la société I@D France SAS.
Mandat : 1873974
Diagnostic de Performance Énergétique (DPE)
Plus d'informations
-
Descriptif
- Terrasse
- Nbre. de chambres : 5
- Nb. de pièces : 8
-
Superficies
- Superficie terrain : 627 m²
- Surface habitable : 147 m²
-
Conditions
- Honoraires à charge de : vendeur
Localisation
Contactez nous
Pour plus d'informations sur cette annonce, n'hésitez pas à nous contacter