Vente
Appartement
à
Montpellier
155 000 €
Montpellier (34080)
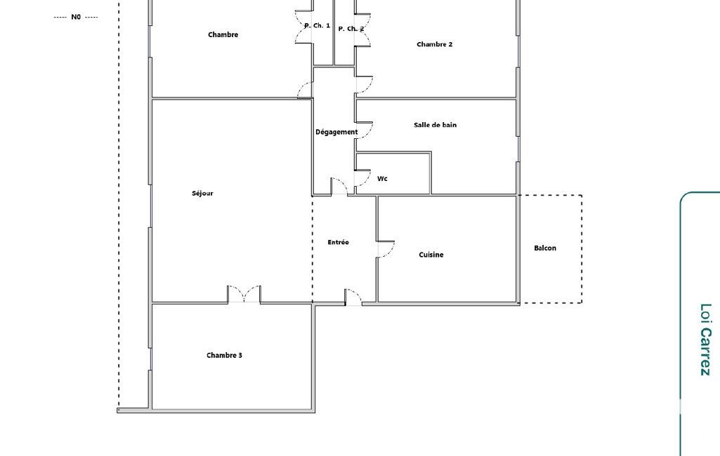
iad France - Laurent Malet vous propose: Montpellier – T4 71 m² – 3 chambres – 2 balcons – Stationnement résidence
Situé rue de la Piscine, à proximité du Château de la Piscine à Montpellier, découvrez cet appartement lumineux de 71 m² au 4ᵉ étage d’une résidence des années 70 bien entretenue.
L’appartement se compose de :
• un séjour spacieux et lumineux
• 3 chambres confortables
• une cuisine équipée
• une salle de bain
• WC séparés
Vous profiterez également de deux balcons exposés sud et ouest, parfaits pour profiter du soleil et d’une vue dégagée sur les toits de Montpellier.
Mandat : 1972383
Diagnostic de Performance Énergétique (DPE)
Plus d'informations
-
Descriptif
- Étage du bien : 4eme
- Nbre. d'étages : 4
- Nbre. de chambres : 3
- Nb. de pièces : 4
-
Loi ALUR
- Copropriété
- Nombre de lots de la copropriété : 50
- Moyenne de la quote part(an) : 1 560 €
-
Equipement
- Chauffage : collectif gaz radiateur
-
Etat
- Année de construction : 1970
-
Conditions
- Honoraires à charge de : vendeur
-
Superficies
- Surface habitable : 71 m²
Localisation
Contactez nous
Pour plus d'informations sur cette annonce, n'hésitez pas à nous contacter
Laurent Malet
Annonce 186 /
79852