Vente
Maison de village
à
Villossanges
69 800 €
Villossanges (63380)
iad France - Valérie Villatel vous propose: 🏡 Maison de bourg – Vue Chaîne des Puys – Les Combrailles
Située au cOEur du village de Villossanges, à proximité de Pontaumur, cette maison de bourg à restaurer offre un fort potentiel, aussi bien pour une résidence principale pour une famille nombreuse que pour un artisan ou du locatif.
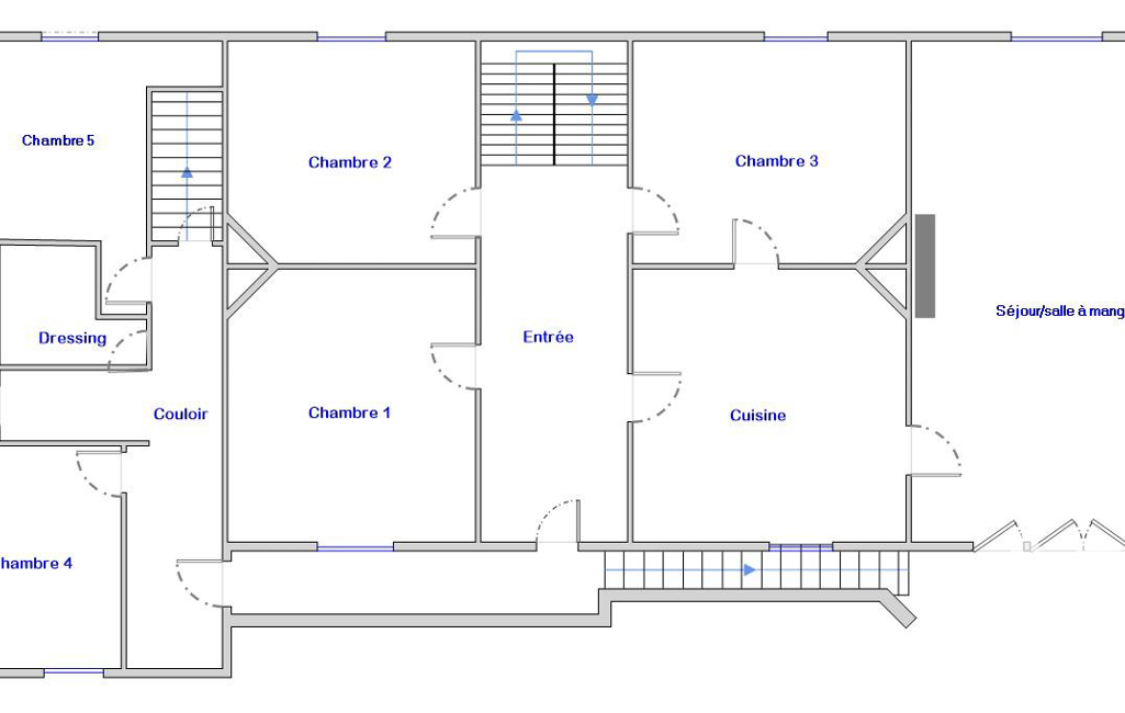
D’une surface habitable d’environ 130 m², elle se compose de : D'une vaste entrée, 3 chambres, une cuisine, un séjour avec cheminée lumineux avec vue dégagée.
Un grenier aménageable, offrant des possibilités d’extension (deux chambres suplementaires avec fenêtres et grand espace a réinventer)
En sous-sol, vous trouverez :1 bureau, sanitaires, un coin chaufferie (chaudière fuel et bois), 2 grand garages dont un pouvant accueillir camping-car ou véhicules utilitaires, 2 caves.
1 annexe indépendante comprenant 2 chambres et des sanitaires, idéale pour accueillir famille, amis ou envisager un gîte
Implantée sur un terrain de 730 m², la propriété bénéficie d’une vue dégagée exceptionnelle sur la Chaîne des Puys, dans un environnement calme et verdoyant. Reliée au tout à l'égout.
Travaux de restauration à prévoir, laissant libre cours à vos projets et à votre créativité.
🔍 Information DPE
DPE classé G. Les consommations indiquées résultent d’un calcul théorique pénalisant pour les maisons anciennes, intégrant une surface élargie incluant le grenier et une partie du sous-sol.
La consommation réelle observée par l’ancien occupant était d’environ 1 500 litres de fioul par an.
A proximité des commodités et des axes principaux, un bien à fort potentiel, à découvrir sans tarder.
Honoraires d'agence à la charge du vendeur.
Information d'affichage énergétique sur ce bien : classe ENERGIE G indice 573 et classe CLIMAT G indice 183. Les informations sur les risques auxquels ce bien est exposé, y compris l'obligation légale de débroussaillement, sont disponibles sur le site Géorisques : http://www.georisques.gouv.fr.
La présente annonce immobilière a été rédigée sous la responsabilité éditoriale de Mme Valérie Villatel mandataire indépendant en immobilier (sans détention de fonds), agent commercial de la SAS I@D France immatriculé au RSAC de Clermont-Ferrand sous le numéro 353255425, titulaire de la carte de démarchage immobilier pour le compte de la société I@D France SAS.
Mandat : 1928960
Diagnostic de Performance Énergétique (DPE)
Plus d'informations
-
Descriptif
- Cave
- Nbre. d'étages : 3
- Nbre. de chambres : 5
- Nb. de pièces : 7
-
Superficies
- Surface du balcon : 2 m²
- Superficie terrain : 736 m²
- Surface habitable : 130 m²
-
Equipement
- Cheminée
- Chauffage : fuel radiateur
-
Etat
- Année de construction : 1940
-
Conditions
- Honoraires à charge de : vendeur
Localisation
Contactez nous
Pour plus d'informations sur cette annonce, n'hésitez pas à nous contacter