Vente
Appartement
à
Paris
565 000 €
Paris (75014)
iad France - Pierre-Emmanuel Rafroidi vous propose: Paris 14ème!
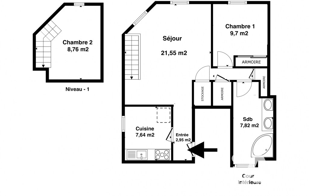
Au milieu des rues pavées et des anciennes maisons d'artistes venez découvrir un beau 3 pièces de 57 m2 en rdc sur élevé d'une petite copropriété très bien entretenue, il est composé d'une entrée, d'une cuisine séparée entièrement équipée, d'une grande pièce de vie. Une chambre avec rangement, une grande salle de bain, WC séparé. Une pièce en souplex pouvant servir de chambre supplémentaire, de bureau ou de salle de jeu.
Cet appartement vous séduira par son emplacement (à proximité immédiate du Parc Montsouris), son calme et sa luminosité, bénéficiant d'une exposition Ouest et Nord. Il est en bon état, fenêtres double vitrage, store électrique, nombreux rangements, fenêtre et extraction d'air au sous-sol.
Contactez moi et ce, 7 JOURS SUR 7 du matin au soir (Jusqu'à minuit), pour répondre à toutes vos questions et organiser une visite dans les plus brefs délais.
La presente annonce immobiliere vise 2 lots situés dans une copropriété de 16 lots au total et ne faisant l'objet d'aucune procédure en cours citée à l'article L. 721-1 du code de la construction et de l'habitation. Montant moyen mensuel de charges déclaré par le vendeur : 142.67€ par mois (soit 1712 € annuel). Honoraires d'agence à la charge du vendeur.
Information d'affichage énergétique sur ce bien : classe ENERGIE E indice 265 et classe CLIMAT B indice 10. Les informations sur les risques auxquels ce bien est exposé, y compris l'obligation légale de débroussaillement, sont disponibles sur le site Géorisques : http://www.georisques.gouv.fr.
La présente annonce immobilière a été rédigée sous la responsabilité éditoriale de M Pierre-Emmanuel Rafroidi mandataire indépendant en immobilier (sans détention de fonds), agent commercial de la SAS I@D France immatriculé au RSAC de PARIS sous le numéro 823077136, titulaire de la carte de démarchage immobilier pour le compte de la société I@D France SAS.
Mandat : 1972384
Diagnostic de Performance Énergétique (DPE)
Plus d'informations
-
Equipement
- Digicode
- Placards
- Chauffage : individuel electrique radiateur
- Interphone
-
Loi ALUR
- Copropriété
- Nombre de lots de la copropriété : 16
- Moyenne de la quote part(an) : 1 712 €
-
Descriptif
- Nbre. d'étages : 3
- Nb. de pièces : 3
-
Etat
- Année de construction : 2005
-
Conditions
- Honoraires à charge de : vendeur
-
Superficies
- Surface habitable : 57 m²
Localisation
Contactez nous
Pour plus d'informations sur cette annonce, n'hésitez pas à nous contacter