Vente
Maison
à
La Flotte
1 498 000 €
La Flotte (17630)
iad France - Lionel Bercier vous propose: Maison familiale avec piscine à La Flotte – 181 m², 4 chambres, jardin, garage
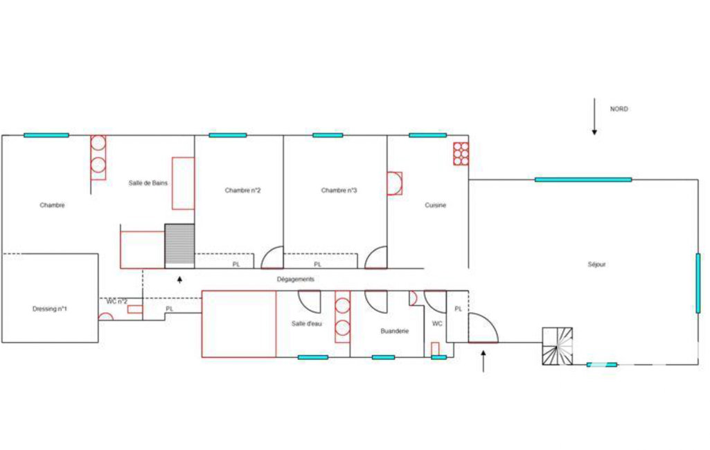
Située dans un environnement calme et recherché de La Flotte, cette maison familiale de plain-pied est sur une jolie parcelle de 601 m². Construite en 1995, elle offre des volumes généreux, une distribution fonctionnelle et des prestations idéales pour une résidence principale ou secondaire sur l’Île de Ré.
La maison se compose de 7 pièces, dont 4 chambres lumineuses, pensées pour le confort et l’intimité de chacun. Le cOEur de vie s’articule autour d’un vaste séjour / salle à manger d’environ 65 m², baigné de lumière, avec cuisine ouverte, parfait pour recevoir et partager des moments conviviaux en famille ou entre amis.
À l’extérieur, vous profitez d’une grande terrasse d’environ 100 m², idéale pour les repas en plein air et les moments de détente. Le jardin paysager offre un cadre verdoyant et sans vis-à-vis, complété par une piscine, véritable atout pour profiter pleinement des beaux jours sur l’île.
Côté prestations : garage, stationnements extérieurs et cave en sous-sol viennent compléter l’ensemble pour un confort de vie optimal. La maison est en bon état général et habitable immédiatement.
Emplacement privilégié à 5 minutes en vélo du port, des commerces, du marché, des écoles et des pistes cyclables, permettant de rejoindre facilement le centre du village et le littoral.
Un bien rare à La Flotte, alliant espace, fonctionnalité et qualité de vie. Visite virtuelle sur demande !!!
Contactez-nous pour organiser une visite et découvrir tout le potentiel de cette maison.
Honoraires d'agence à la charge de l'acquéreur. Prix honoraires inclus : 1498000 euros. Prix hors honoraires : 1450000 euros. Honoraires TTC à la charge de l'acquéreur (3,31% du prix du bien hors honoraires) : 48000 euros.
Information d'affichage énergétique sur ce bien : classe ENERGIE C indice 173 et classe CLIMAT B indice 6. Les informations sur les risques auxquels ce bien est exposé, y compris l'obligation légale de débroussaillement, sont disponibles sur le site Géorisques : http://www.georisques.gouv.fr.
La présente annonce immobilière a été rédigée sous la responsabilité éditoriale de M Lionel Bercier mandataire indépendant en immobilier (sans détention de fonds), agent commercial de la SAS I@D France immatriculé au RSAC de LE ROCHELLE sous le numéro 339189482, titulaire de la carte de démarchage immobilier pour le compte de la société I@D France SAS.
Mandat : 2009825
Diagnostic de Performance Énergétique (DPE)
Plus d'informations
-
Descriptif
- Cave
- Terrasse
- Nbre. d'étages : 1
- Nbre. de chambres : 4
- Nb. Parking : 1
- Nb. de pièces : 8
-
Equipement
- Câble TV
- Placards
- Chauffage : electrique radiateur
-
Conditions
- Honoraires : 48 000 €
- Prix hors honoraires acquéreur : 1 450 000 €
- Honoraires à charge de : acquéreur
-
Superficies
- Surface terrasse : 100 m²
- Superficie terrain : 601 m²
- Surface habitable : 181 m²
-
Extérieur
- Piscine
-
Etat
- Année de construction : 1995
Localisation
Contactez nous
Pour plus d'informations sur cette annonce, n'hésitez pas à nous contacter