Vente
Maison
à
Villennes-sur-Seine
1 450 000 €
Villennes-sur-Seine (78670)
iad France - Eric Billaut vous propose: Propriété contemporaine avec ponton privé – Île de Villennes-sur-Seine
Sur l’Île de Villennes-sur-Seine, découvrez une propriété contemporaine rare dont le jardin arboré descend jusqu’à la Seine et dispose d’un ponton privé pour amarrer votre bateau. Imaginez partir naviguer directement depuis votre jardin pour une promenade au fil de l’eau!
Située dans un domaine privé et sécurisé, cette élégante maison développe 265 m² habitables et bénéficie d’un environnement naturel privilégié.
Implantée sur un magnifique terrain arboré d’environ 2 250 m² descendant jusqu’à la Seine, la propriété offre un cadre de vie rare mêlant nature, calme et plaisirs nautiques.
Une maison familiale aux volumes généreux
La maison se déploie sur deux niveaux offrant des espaces parfaitement adaptés à la vie de famille.
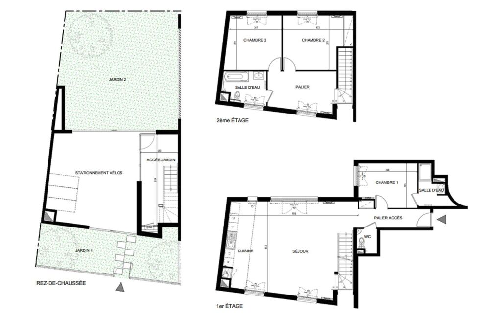
Rez-de-chaussée
L’entrée avec placards dessert un premier espace comprenant :
une suite parentale avec dressing et salle de douche
un bureau avec accès direct au jardin
une salle de douche indépendante avec double vasque
La suite parentale et le bureau bénéficient de larges baies vitrées ouvrant sur le jardin.
Ce niveau comprend également :
une grande chambre actuellement aménagée en salle de musique
une spacieuse buanderie
un cellier
Un appartement indépendant de deux pièces, avec accès direct à une terrasse et au jardin, complète ce niveau.
Il comprend une grande chambre avec salle de douche et toilettes, idéal pour recevoir des invités, loger une fille au pair ou envisager un espace locatif.
Un étage dédié aux espaces de réception
Un superbe escalier en pierre de Bulgarie mène à l’étage.
Le palier distribue un séjour lumineux d’environ 40 m², agrémenté d’une cheminée contemporaine avec insert et d’un système home cinéma intégré au plafond.
Grâce à ses grandes baies vitrées exposées sud-ouest, le séjour s’ouvre sur une terrasse de 40 m² surplombant le jardin et offrant une vue dégagée sur la verdure et les collines environnantes.
À ce niveau se trouvent également :
une cuisine indépendante aménagée et équipée
un dégagement avec placards sur mesure
des toilettes indépendantes
trois grandes chambres
une salle de bains
Extérieurs et prestations
Le jardin plat et arboré constitue un véritable écrin de verdure descendant jusqu’à la Seine et dispose de deux abris de jardin.
La propriété permet de stationner de nombreux véhicules au sein de la parcelle.
La maison bénéficie de prestations récentes garantissant confort et performance énergétique :
toiture refaite en 2022
pompe à chaleur et ballon thermodynamique installés en 2024
isolation thermique par l’extérieur
Un art de vivre au fil de l’eau
Le ponton privé permet de profiter pleinement de la Seine et des activités nautiques.
Pour apprécier ce cadre de vie unique, une seconde visite peut être organisée en bateau, permettant de découvrir la propriété et son environnement depuis la rivière.
Une situation privilégiée
La propriété se situe à seulement 500 mètres du centre-ville et de la gare de Gare de Villennes-sur-Seine reliant Gare Saint-Lazare en environ 25 minutes.
L’arrivée prochaine du RER E prolongement EOLE en 2027 renforcera encore l’attractivité du secteur.
À proximité immédiate :
écoles accessibles à pied
bus vers le Lycée International et les lycées de Saint-Germain-en-Laye et Notre-Dame des Oiseaux
accès rapide aux autoroutes Autoroute A13 et Autoroute A14
Golf de Villennes-sur-Seine.
Eric Billaut
Spécialiste des propriétés au bord de la Seine
L'île est sécurisée par une grille avec digicode et offre beaucoup de convivialité. Proximité immédiate du centre ville à 500 m à pieds, à deux pas de la gare de Villennes-sur Seine ligne J desservant la gare Saint Lazare en 25 min, futur RER E prévu pour 2027, écoles accessibles à pied, bus pour le Lycée international, Notre dame des Oiseaux, accès A13/14, golf de Villennes-sur-Seine, base nautique de Villennes-sur-Seine.
Honoraires d'agence à la charge du vendeur.
Information d'affichage énergétique sur ce bien : classe ENERGIE B indice 79 et classe CLIMAT A indice 2. Les informations sur les risques auxquels ce bien est exposé, y compris l'obligation légale de débroussaillement, sont disponibles sur le site Géorisques : http://www.georisques.gouv.fr.
La présente annonce immobilière a été rédigée sous la responsabilité éditoriale de M Eric Billaut mandataire indépendant en immobilier (sans détention de fonds), agent commercial de la SAS I@D France immatriculé au RSAC de Versailles sous le numéro 831400809, titulaire de la carte de démarchage immobilier pour le compte de la société I@D France SAS.
Mandat : 1948013
Diagnostic de Performance Énergétique (DPE)
Plus d'informations
-
Descriptif
- Nbre. d'étages : 2
- Nb. de pièces : 10
-
Superficies
- Superficie terrain : 2200 m²
- Surface habitable : 266 m²
-
Equipement
- Chauffage : electrique
-
Etat
- Année de construction : 1960
-
Conditions
- Honoraires à charge de : vendeur
Localisation
Contactez nous
Pour plus d'informations sur cette annonce, n'hésitez pas à nous contacter