Vente
Immeuble
à
Vitry-sur-Seine
1 599 000 €
Vitry-sur-Seine (94400)
iad France - Tony Largeaud vous propose: Opportunité Rare - Boulevard Stalingrad à Vitry-sur-Seine
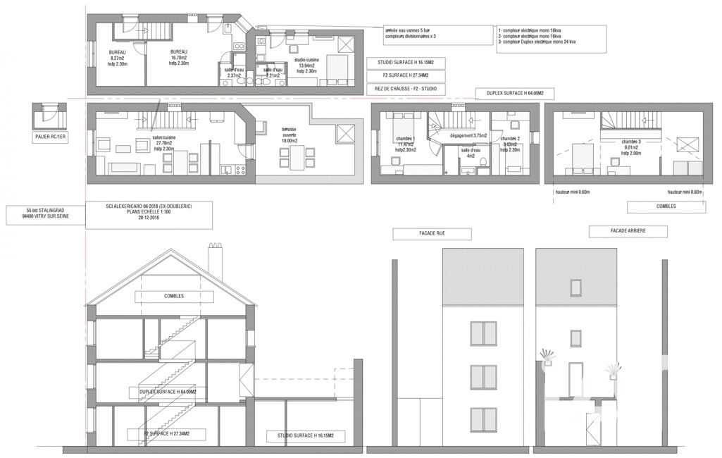
Situé au cOEur de Vitry-sur-Seine, ce bâtiment historique datant de 1920 offre un potentiel exceptionnel pour un projet d’investissement unique. Avec une surface de 340 m² répartie sur trois appartements (studio de 16m2, F2 de 27m2, duplex de 64m2) + Maison de 166 m2 sur 3 niveaux + bureau de 67m2)
Trés bon rendement locatif brut sur un secteur très recherché à Vitry sur seine.
La maison est divisible selon l’investisseur en plusieurs appartements.
Ce bien offre une multitude de possibilités d'aménagement, que ce soit pour la création d'appartements de standing, de bureaux modernes ou encore pour un projet mixte combinant espaces de vie et de travail.
Bénéficiant d'une exposition plein sud, le bâtiment bénéficie d'une luminosité naturelle optimale tout au long de la journée. Cette orientation apporte également une chaleur agréable et une ambiance lumineuse.
La proximité immédiate des transports en commun, des commerces locaux et des espaces verts facilite la vie quotidienne des futurs occupants ou utilisateurs de ce bâtiment, offrant ainsi une qualité de vie optimale.
Une occasion rare d'investir dans un bâtiment chargé d'histoire, à réinventer selon vos envies. Laissez libre cours à votre imagination et transformez ce lieu unique en un espace exceptionnel qui marquera les esprits.
Ne manquez pas cette opportunité unique et contactez-nous dès maintenant pour organiser une visite de ce bâtiment exceptionnel à Vitry-sur-Seine.
Honoraires d'agence à la charge du vendeur.
Information d'affichage énergétique sur ce bien : classe ENERGIE D indice 180 et classe CLIMAT A indice 5. Les informations sur les risques auxquels ce bien est exposé, y compris l'obligation légale de débroussaillement, sont disponibles sur le site Géorisques : http://www.georisques.gouv.fr.
La présente annonce immobilière a été rédigée sous la responsabilité éditoriale de M Tony Largeaud mandataire indépendant en immobilier (sans détention de fonds), agent commercial de la SAS I@D France immatriculé au RSAC de EVRY sous le numéro 938681020, titulaire de la carte de démarchage immobilier pour le compte de la société I@D France SAS.
Mandat : 1882493
Diagnostic de Performance Énergétique (DPE)
Plus d'informations
-
Descriptif
- Nbre. d'étages : 2
-
Etat
- Année de construction : 1920
-
Conditions
- Honoraires à charge de : vendeur
-
Superficies
- Surface habitable : 340 m²
Localisation
Contactez nous
Pour plus d'informations sur cette annonce, n'hésitez pas à nous contacter