Vente
Maison de village
à
Châtelus-le-Marcheix
70 000 €
Châtelus-le-Marcheix (23430)
iad France - Cécile Doucet vous propose:
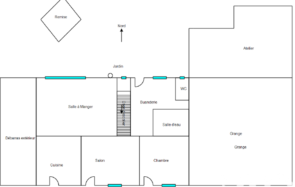
Maison familiale de bourg en pierres, bâtie au 17e siècle, d'une surface de 156 m² sur deux niveaux, avec grange en longère et dépendances à l’arrière.
La maison permet une vie de plain-pied avec, en son rez-de-chaussée, une cuisine équipée de 15 m² avec insert à bois, une pièce de vie de 20 m², une buanderie avec WC et une première salle d’eau (avec cabine douche), ainsi qu’une chambre (ancien salon de coiffure) de 13,5 m² avec coin lavabo.
Dessous, une cave de 27 m² permet la conservation et le stockage des aliments.
Vous pourrez vous installer avec une grande famille ou faire de cette maison un lieu de rassemblement pour les vacances, avec ses 5 chambres supplémentaires à l’étage d’une surface variant entre 11,2 m² et 12,7 m² et sa deuxième salle de bain avec WC de 7,4 m².
Au-dessus, le grenier de 87 m² est aménageable, ou peut simplement rester un espace de rangement.
Pour vos véhicules de tout type, la grange en longère a une surface de 60 m² au sol avec un étage accessible par échelle. Mais elle pourrait également faire l’objet d’une rénovation pour la création d’un gîte par exemple.
Dans le jardin, un ancien atelier de sabotier de 30 m² satisfera les plus bricoleurs d’entre vous ! En supplément, une construction plus récente en parpaings sert aujourd’hui de bûcher et de rangement pour votre salon de jardin, environ 200 m² d’espace pour profiter des beaux jours.
Aspects techniques :
- assainissement collectif
- huisseries bois simple vitrage
- électricité à reprendre
- toitures ardoises fibro-ciment, à faire suivre
- chauffage : insert à bois
Une maison « dans son jus », permettant une rénovation à son goût, mais habitable dans l’état, dans une commune avec école maternelle. Primaire, collège et commerces sont à une dizaine de kilomètres.
Honoraires d'agence à la charge du vendeur.
Information d'affichage énergétique sur ce bien : classe ENERGIE F indice 389 et classe CLIMAT C indice 12. Les informations sur les risques auxquels ce bien est exposé, y compris l'obligation légale de débroussaillement, sont disponibles sur le site Géorisques : http://www.georisques.gouv.fr.
La présente annonce immobilière a été rédigée sous la responsabilité éditoriale de Mme Cécile Doucet mandataire indépendant en immobilier (sans détention de fonds), agent commercial de la SAS I@D France immatriculé au RSAC de GUERET sous le numéro 828593012, titulaire de la carte de démarchage immobilier pour le compte de la société I@D France SAS.
Mandat : 1899613
Diagnostic de Performance Énergétique (DPE)
Plus d'informations
-
Descriptif
- Cave
- Nbre. de chambres : 5
- Nb. de pièces : 10
-
Superficies
- Superficie terrain : 480 m²
- Surface habitable : 155 m²
-
Equipement
- Cheminée
-
Conditions
- Honoraires à charge de : vendeur
Localisation
Contactez nous
Pour plus d'informations sur cette annonce, n'hésitez pas à nous contacter