Vente
Maison
à
Chartres
166 400 €
Chartres (28000)
iad France - Angélique Provot vous propose: Maison de ville avec jardin et fort potentiel - Chartres
Vous cherchez une maison avec du potentiel, un beau terrain et une localisation pratique sur Chartres ?
Cette maison de ville mérite clairement votre attention.
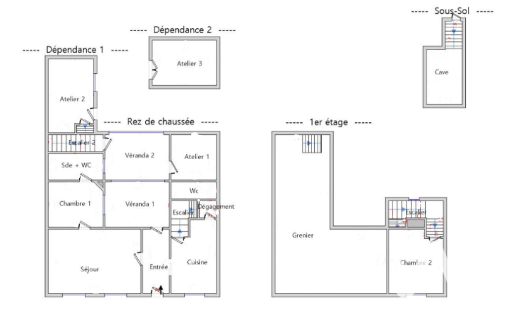
Maison d’environ 91 m² habitables, édifiée avant 1945, sur une parcelle d’environ 1 310 m² (environ 9 m de largeur pour près de 146 m de profondeur), un vrai plus sur le secteur.
Elle se compose d’une entrée d’environ 9,3 m², d’un séjour lumineux de 23,3 m² avec cheminée insert, d’une cuisine de 12,3 m², de deux chambres au rez-de-chaussée (11,6 m² et 12,1 m²), d’une salle de bains d’environ 5 m² et d’un WC indépendant.
À l’étage, une troisième chambre d’environ 11,6 m² ainsi qu’un grenier pour du rangement.
La maison est prolongée par deux vérandas dans la continuité du bâti, créant des volumes supplémentaires et offrant de nombreuses possibilités d’aménagement selon vos envies.
À l’extérieur :
– terrain d’environ 1 310 m²
– deux abris de jardin
– atelier d’environ 9 m²
– cave d’environ 9 m²
Chauffage gaz de ville avec cheminée insert.
Maison habitable en l’état, avec des travaux de rénovation à prévoir pour la moderniser et exploiter pleinement son potentiel.
Taxe foncière : 814 €.
Emplacement pratique :
– gare SNCF de Chartres accessible en environ 20 minutes à pied (Paris Montparnasse env. 1h)
– centre-ville et place Drouaise à quelques minutes
– commerces, écoles et bus à proximité
– accès rapide A11 vers Paris
– proximité du complexe aquatique avec bassin olympique, patinoire, Colisée et équipements sportifs
Une maison intéressante pour une résidence principale, un projet familial ou un investissement avec valorisation sur Chartres.
Pour plus d’informations ou organiser une visite, contactez-moi.
Honoraires d'agence à la charge de l'acquéreur. Prix honoraires inclus : 166400 euros. Prix hors honoraires : 160000 euros. Honoraires TTC à la charge de l'acquéreur (4,00% du prix du bien hors honoraires) : 6400 euros.
Information d'affichage énergétique sur ce bien : classe ENERGIE E indice 313 et classe CLIMAT E indice 67. Les informations sur les risques auxquels ce bien est exposé, y compris l'obligation légale de débroussaillement, sont disponibles sur le site Géorisques : http://www.georisques.gouv.fr.
La présente annonce immobilière a été rédigée sous la responsabilité éditoriale de Mme Angélique Provot mandataire indépendant en immobilier (sans détention de fonds), agent commercial de la SAS I@D France immatriculé au RSAC de Chartres sous le numéro 517602686, titulaire de la carte de démarchage immobilier pour le compte de la société I@D France SAS.
Mandat : 1942587
Diagnostic de Performance Énergétique (DPE)
Plus d'informations
-
Conditions
- Honoraires : 6 400 €
- Prix hors honoraires acquéreur : 160 000 €
- Honoraires à charge de : acquéreur
-
Descriptif
- Nbre. d'étages : 1
- Nbre. de chambres : 2
- Nb. de pièces : 3
-
Equipement
- Cheminée
- Chauffage : gaz
-
Superficies
- Superficie terrain : 1310 m²
- Surface habitable : 91 m²
-
Etat
- Année de construction : 1945
Localisation
Contactez nous
Pour plus d'informations sur cette annonce, n'hésitez pas à nous contacter