Vente
Maison
à
Bouray-sur-Juine
360 000 €
Bouray-sur-Juine (91850)
iad France - Odette RODRIGUES-DE-MOURA vous propose: Charmante maison de ville à Bouray-sur-Juine, à 35 mn de Paris BFM (Bibliothèque François Mitterrand) ligne RER C.
Située dans le charmant village de Bouray-sur-Juine, à seulement quelques kilomètres de Paris, cette maison de ville de 143 m² offre un cadre de vie paisible et agréable. Construite en 1900, elle a su conserver tout son charme d'antan tout en bénéficiant de rénovations récentes lui conférant un état général impeccable.
Au rez-de-chaussée, vous découvrirez un bel espace de vie comprenant un salon chaleureux avec son poêle à granulés, une salle à manger et une cuisine séparée lumineuse. Une salle d'eau /WC viennent compléter ce niveau, offrant ainsi un agencement fonctionnel et pratique. Un accès au garage d'une superficie de 15 m² environ vient compléter ce bien.
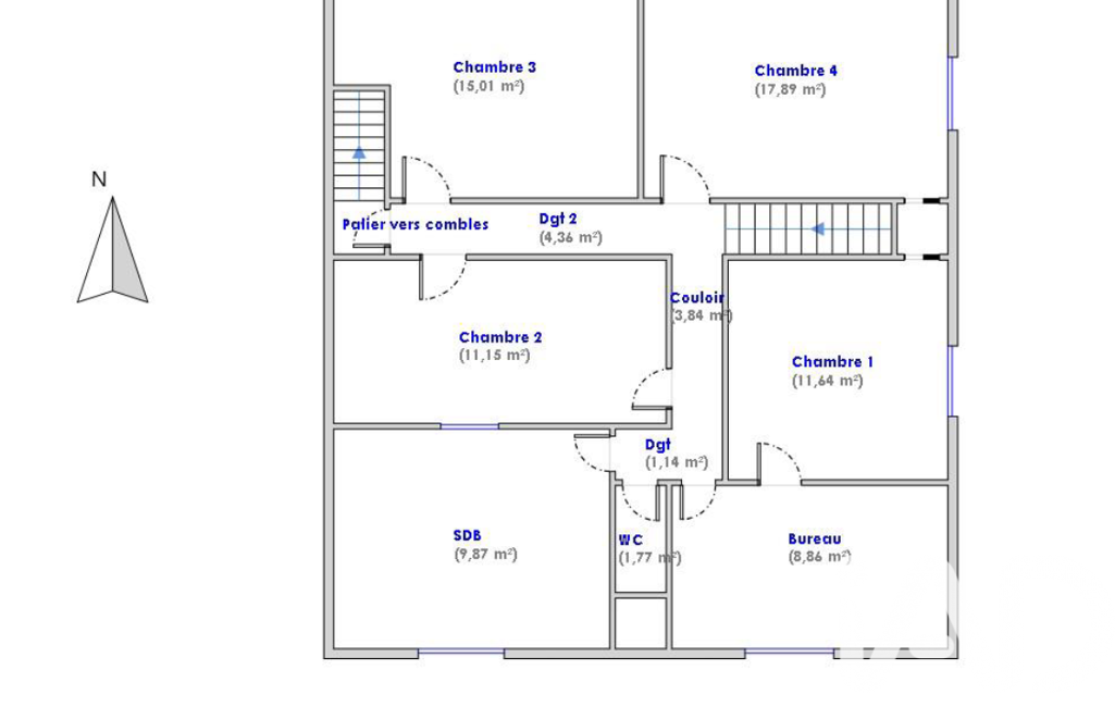
Au premier niveau, vous trouverez quatres chambres de 11, 11,5, 15 et 18 m², et un espace bureau avec un puit de lumière de 8,5 m² environ idéal pour le télétravail. Une salle de bain un wc séparé. Chaque pièce offre des volumes généreux et une belle luminosité, créant une atmosphère confortable et accueillante.
Au deuxième niveau les combles aménageables d'environ 80 m² offre un espace supplémentaire.
L'extérieur de la maison ravira les amoureux de la nature avec un vaste terrain de 914 m² permettant la création d'un magnifique jardin paisible.
Cette propriété bénéficie d'un système de chauffage individuel basé sur des convecteurs électriques et d'un poêle à granulés, assurant un confort optimal tout au long de l'année Un ballon thermodynamique de 2026, assainissement collectif conforme.
Profitez de cette opportunité rare d'acquérir une maison de caractère dans un environnement calme et verdoyant, à proximité des commodités et des axes de transport.
N'hésitez pas à me contacter pour plus d'informations ou pour organiser une visite. Coup de cOEur assuré !
Honoraires d'agence à la charge du vendeur.
Information d'affichage énergétique sur ce bien : classe ENERGIE D indice 238 et classe CLIMAT B indice 9. Les informations sur les risques auxquels ce bien est exposé, y compris l'obligation légale de débroussaillement, sont disponibles sur le site Géorisques : http://www.georisques.gouv.fr.
La présente annonce immobilière a été rédigée sous la responsabilité éditoriale de Mme Odette RODRIGUES-DE-MOURA mandataire indépendant en immobilier (sans détention de fonds), agent commercial de la SAS I@D France immatriculé au RSAC de POITIERS sous le numéro 897427258, titulaire de la carte de démarchage immobilier pour le compte de la société I@D France SAS.
Mandat : 1971012
Diagnostic de Performance Énergétique (DPE)
Plus d'informations
-
Descriptif
- Nbre. d'étages : 2
- Nbre. de chambres : 4
- Nb. de pièces : 8
-
Superficies
- Superficie terrain : 914 m²
- Surface habitable : 143 m²
-
Equipement
- Chauffage : electrique radiateur
-
Etat
- Année de construction : 1900
-
Conditions
- Honoraires à charge de : vendeur
Localisation
Contactez nous
Pour plus d'informations sur cette annonce, n'hésitez pas à nous contacter