Vente
Duplex
à
Issy-les-Moulineaux
1 450 000 €
Issy-les-Moulineaux (92130)
iad France - Sarah Rozière (06 99 86 19 42) vous propose : Appartement T4 en duplex avec jardin à Issy-les-Moulineaux
Située rue Roger Salengro à Issy-les-Moulineaux, à seulement quelques minutes de Paris, la résidence contemporaine Axoma conjugue élégance architecturale et qualité de vie urbaine. Entre sérénité et dynamisme, cette adresse offre un environnement calme et privilégié, à proximité immédiate des commerces, des écoles et des transports. Disponible en 2027.
Un appartement raffiné :
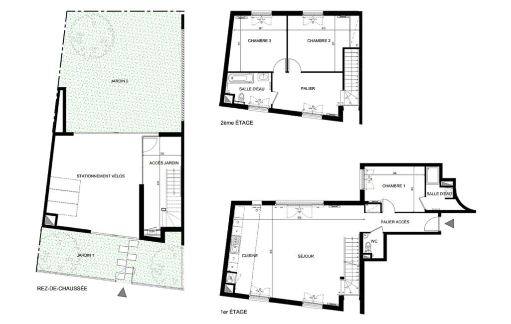
- Situé au 1 er étage, cet appartement T4 de 134 m² environ habitables se prolonge par un jardin privatif de 89 m² environ, véritable havre de verdure au cOEur de la ville.
- Grand séjour/cuisine de 50 m² environ.
- Trois chambres confortables, dont une suite parentale.
- Salles d’eau modernes.
- Annexes incluses : un parking et local à vélos.
De belles prestations :
- Résidence conforme à la Réglementation Thermique 2012, gage de confort et d’efficacité énergétique.
- Chauffage individuel par chaudière gaz à condensation et radiateurs à eau chaude.
- Volets roulants électriques et menuiseries aluminium double vitrage.
- Porte palière blindée A2P, visiophone et contrôle d’accès Vigik.
L’art de vivre à Issy-les-Moulineaux :
- À proximité du tramway Jacques-Henri Lartigue et de la future gare du Grand Paris Express.
- À 5 minutes de la Cité des Sports et du centre-ville.
- Commerces, écoles, crèches et espaces verts accessibles à pied.
- Accès rapide à Paris (15 min) et au Périphérique Sud.
Profitez également d’un bien assorti de la garantie constructeur et de frais de notaire réduits pour allier sécurité et rentabilité.
N’hésitez pas à me contacter pour plus d’informations ou pour un accompagnement sur mesure.
Honoraires d’agence à la charge du vendeur. Bien non soumis au DPE. Les informations sur les risques auxquels ce bien est exposé sont disponibles sur le site Géorisques : www.georisques.gouv.fr. La présente annonce immobilière a été rédigée sous la responsabilité éditoriale de Mlle Sarah Rozière EI (ID 83696), mandataire indépendant en immobilier (sans détention de fonds), agent commercial de la SAS I@D France immatriculé au RSAC de Clermont-Ferrand sous le numéro 978616993, titulaire de la carte de démarchage immobilier pour le compte de la société I@D France SAS.
Retrouvez tous nos biens sur notre site internet. www.iadfrance.fr
Mandat : 1867090-4
Diagnostic de Performance Énergétique (DPE)
Plus d'informations
-
Descriptif
- Étage du bien : 1er
- Nbre. d'étages : 4
- Nbre. de chambres : 3
- Nb. Parking : 1
- Nb. de pièces : 4
-
Equipement
- Digicode
- Chauffage : individuel gaz
- Interphone
-
Etat
- Année de construction : 2027
-
Conditions
- Honoraires à charge de : vendeur
-
Superficies
- Surface habitable : 134 m²
Localisation
Contactez nous
Pour plus d'informations sur cette annonce, n'hésitez pas à nous contacter