Vente
Maison
à
Vidauban
598 000 €
Vidauban (83550)
iad France - Olivia Mai vous propose: VIDAUBAN – Propriété de caractère avec fort potentiel
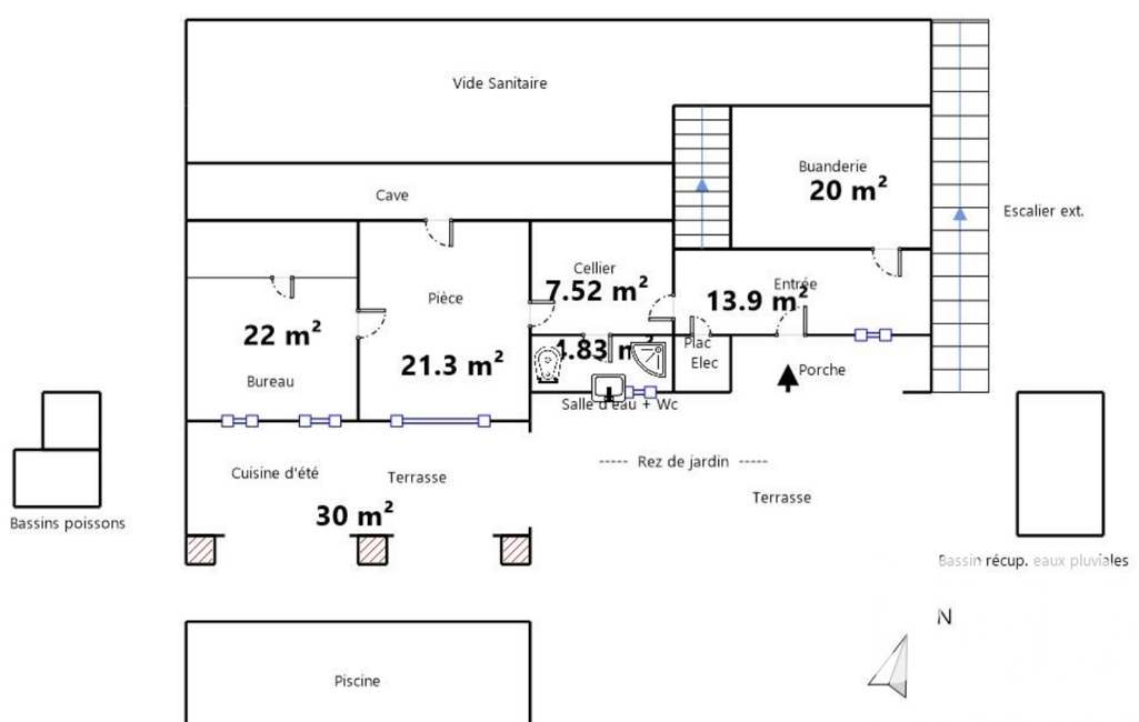
Au cOEur d’un environnement naturel calme et sans vis-à-vis, sur une parcelle de 4 392 m², découvrez cette maison d’environ 235 m² offrant une vue dégagée sur la plaine et le Massif des Maures.
Ses beaux volumes et sa configuration permettent de nombreux projets : résidence principale, secondaire, investissement locatif ou division en plusieurs appartements.
La maison se compose :
D’un rez-de-chaussée modulable avec accès direct à la terrasse, piscine et cuisine d’été (idéal logement indépendant)
D’un étage lumineux avec double séjour, cuisine, 3 chambres, dressing et terrasses
Prestations : climatisation gainable, double vitrage, panneaux solaires, fosse septique conforme, isolation récente.
À l’extérieur : piscine au sel, terrasses, boulodrome, bassin, terrain aménagé en restanques, double abri voiture et portail électrique.
Quelques travaux à prévoir – énorme potentiel de valorisation
Un bien rare, idéal pour un projet de vie ou un investissement rentable.
Disponible 7j/7 pour organiser une visite
Honoraires d'agence à la charge du vendeur.
Information d'affichage énergétique sur ce bien : classe ENERGIE C indice 112 et classe CLIMAT A indice 4. Les informations sur les risques auxquels ce bien est exposé, y compris l'obligation légale de débroussaillement, sont disponibles sur le site Géorisques : http://www.georisques.gouv.fr.
La présente annonce immobilière a été rédigée sous la responsabilité éditoriale de Mme Olivia Mai mandataire indépendant en immobilier (sans détention de fonds), agent commercial de la SAS I@D France immatriculé au RSAC de nice sous le numéro 839125440, titulaire de la carte de démarchage immobilier pour le compte de la société I@D France SAS.
Mandat : 1995070
Diagnostic de Performance Énergétique (DPE)
Plus d'informations
-
Descriptif
- Cave
- Terrasse
- Nbre. d'étages : 1
- Nbre. de chambres : 4
- Nb. Parking : 1
- Nb. de pièces : 6
-
Equipement
- Câble TV
- Cheminée
- Placards
-
Superficies
- Superficie terrain : 4392 m²
- Surface habitable : 215 m²
-
Extérieur
- Piscine
-
Etat
- Année de construction : 1981
-
Conditions
- Honoraires à charge de : vendeur
Localisation
Contactez nous
Pour plus d'informations sur cette annonce, n'hésitez pas à nous contacter