Vente
Maison
à
Coubron
405 000 €
Coubron (93470)
iad France - Laurence MATHIVET (06 07 39 26 01) vous propose : Maison familiale indépendante de 8 pièces – COUBRON, au calme dans une impasse privée
Située dans un environnement calme, verdoyant et sécurisé, cette maison indépendante de 8 pièces, parfaitement entretenue, vous séduira par ses volumes, sa luminosité et ses nombreuses possibilités d’aménagement.
Édifiée sur un terrain arboré de 600 m² environ, elle offre une surface habitable généreuse, idéale pour une grande famille ou une profession libérale souhaitant conjuguer vie personnelle et activité professionnelle.
Composition du bien :
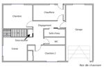
Rez-de-jardin (niveau indépendant possible)
- Entrée de 9 m² environ
- 2 chambres (9,5 m² environ et 12 m² environ)
- Buanderie de 9 m² environ
- Salle d’eau + WC séparés
- Grand garage de 30,5 m² environ
Ce niveau peut facilement être transformé en appartement indépendant (jeune adulte, parent, bureau professionnel...).
Rez-de-chaussée surélevé
- Vaste séjour traversant de 42 m² environ (possibilité de recréer une chambre comme à l’origine)
- Cuisine aménagée de 11,5 m² environ
- 2 chambres (11,5 m² environ et 9 m² environ)
- Salle de bains et WC séparés
Combles aménagés
- 1 chambre supplémentaire de 10 m² environ
- Grande salle de jeux de 30 m² environ
- Dressing de 3,5 m² environ
Idéal pour créer une suite parentale ou un espace détente.
Atouts supplémentaires
Maison indépendante et lumineuse (exposition est/ouest)
Chauffage central au gaz
Située dans une impasse privée et sécurisée
Proximité immédiate des écoles, commerces et transports
Honoraires d’agence à la charge du vendeur.Information d'affichage énergétique sur ce bien : classe ENERGIE E indice 311 et classe CLIMAT E indice 51. Les informations sur les risques auxquels ce bien est exposé sont disponibles sur le site Géorisques : www.georisques.gouv.fr. La présente annonce immobilière a été rédigée sous la responsabilité éditoriale de Mme Laurence MATHIVET EI (ID 60664), mandataire indépendant en immobilier (sans détention de fonds), agent commercial de la SAS I@D France immatriculé au RSAC de BOBIGNY sous le numéro 903664068, titulaire de la carte de démarchage immobilier pour le compte de la société I@D France SAS. Le présent bien est commercialisé dans le cadre d'une délégation de mandat.
Retrouvez tous nos biens sur notre site internet. www.iadfrance.fr
Mandat : 1984941
Diagnostic de Performance Énergétique (DPE)
Plus d'informations
-
Equipement
- Câble TV
- Cheminée
- Placards
- Chauffage : gaz radiateur
-
Descriptif
- Nbre. d'étages : 3
- Nbre. de chambres : 6
- Nb. de pièces : 8
-
Superficies
- Superficie terrain : 600 m²
- Surface habitable : 174 m²
-
Etat
- Année de construction : 1974
-
Conditions
- Honoraires à charge de : vendeur
Localisation
Contactez nous
Pour plus d'informations sur cette annonce, n'hésitez pas à nous contacter