Vente
Appartement
à
Uzès
395 000 €
Uzès (30700)
iad France - Penelope Stoker (06 50 24 86 27) vous propose : Appartement T3 avec terrasse et place de parking à Uzès
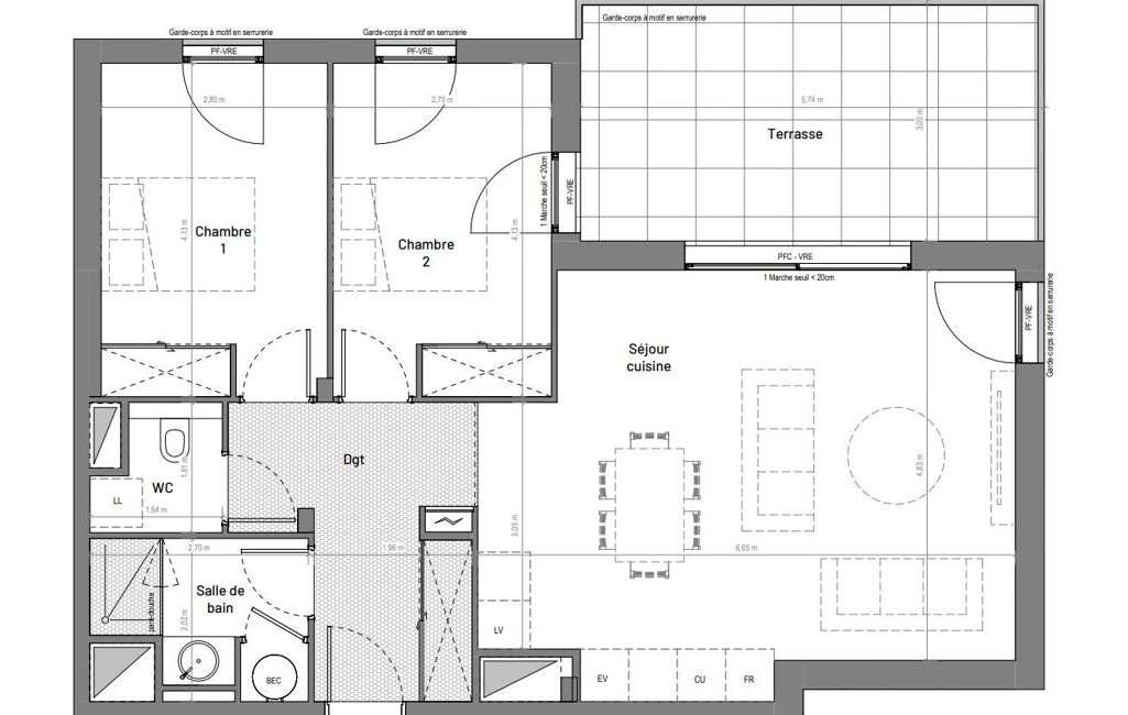
Dans une résidence de standing idéalement située à Uzès, à proximité des commerces et du centre historique, découvrez cet appartement T3 situé au premier étage, offrant un cadre de vie confortable et lumineux.
D’une surface habitable de 69,6 m² environ, il se compose d’une pièce de vie séjour/cuisine de 31,6 m² environ, de deux chambres de 11,5 m² environ et 11,1 m² environ, d’une salle de bain de 8,7 m² environ, d’un dégagement de 4,5 m² environ ainsi que d’un WC indépendant.
L’appartement dispose également d’une terrasse de 16,5 m² environ, idéale pour profiter des beaux jours.
Le bien est vendu avec une place de parking privative.
Pour plus de renseignements, merci de me contacter.
Honoraires d’agence à la charge du vendeur. Bien non soumis au DPE. Les informations sur les risques auxquels ce bien est exposé sont disponibles sur le site Géorisques : www.georisques.gouv.fr. La présente annonce immobilière a été rédigée sous la responsabilité éditoriale de Mme Penelope Stoker EI (ID 83102), mandataire indépendant en immobilier (sans détention de fonds), agent commercial de la SAS I@D France immatriculé au RSAC de Paris sous le numéro 930194964, titulaire de la carte de démarchage immobilier pour le compte de la société I@D France SAS.
Retrouvez tous nos biens sur notre site internet. www.iadfrance.fr
Mandat : 1906038-13
Diagnostic de Performance Énergétique (DPE)
Plus d'informations
-
Descriptif
- Étage du bien : 1er
- Terrasse
- Ascenseur
- Nb. Parking : 1
- Nb. de pièces : 3
-
Equipement
- Digicode
- Interphone
-
Conditions
- Honoraires à charge de : vendeur
-
Superficies
- Surface habitable : 70 m²
Localisation
Contactez nous
Pour plus d'informations sur cette annonce, n'hésitez pas à nous contacter