Vente
Appartement
à
Ferrières-en-Gâtinais
109 000 €
Ferrières-en-Gâtinais (45210)
iad France - Rachel Masson vous propose: Appartement de caractère au dernier étage – Centre historique de Ferrières-en-Gâtinais
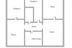
Situé au sein d'une bâtisse ancienne, cet appartement de 67 m2 environ occupe le deuxième et dernier étage, offrant calme et vue dégagée. Ce bien combine le charme de l'ancien, avec ses tomettes authentiques et ses poutres apparentes, à une rénovation récente de qualité.
L'agencement du bien permet une grande flexibilité d'usage :
Entrée : Desserte optimisée des différentes pièces.
Espace vie : Un salon indépendant chaleureux et une cuisine dînatoire séparée, entièrement aménagée.
Espace nuit : Deux chambres lumineuses.
Espace supplémentaire : Une pièce actuellement dédiée au bureau ou à la salle à manger, pouvant être facilement transformée en troisième chambre selon vos besoins.
Sanitaires : Une salle de bain avec WC, rénovée récemment.
État général et prestations :
Le logement a bénéficié de travaux d'entretien et de rénovation importants : électricité aux normes, peintures intérieures et équipements sanitaires récents. Situé au dernier étage d'un petit immeuble, il garantit l'absence de voisinage au-dessus.
L'emplacement est privilégié, au pied des commerces, des services et des rues pavées du centre-ville historique.
Informations complémentaires :
Surface : environ 67 m2
Configuration : 2 à 3 chambres selon aménagement
DPE : Classe F
Copropriété : En cours de création
Ce bien représente une opportunité rare, idéale pour un premier achat ou un investissement locatif patrimonial au sein d'un secteur recherché.
La presente annonce immobiliere vise 1 lot situé dans une copropriété de 4 lots au total et ne faisant l'objet d'aucune procédure en cours citée à l'article L. 721-1 du code de la construction et de l'habitation. Montant moyen mensuel de charges déclaré par le vendeur : 0€ par mois (soit 0 € annuel). Honoraires d'agence à la charge du vendeur.
Information d'affichage énergétique sur ce bien : classe ENERGIE F indice 418 et classe CLIMAT C indice 13. Les informations sur les risques auxquels ce bien est exposé, y compris l'obligation légale de débroussaillement, sont disponibles sur le site Géorisques : http://www.georisques.gouv.fr.
La présente annonce immobilière a été rédigée sous la responsabilité éditoriale de Mme Rachel Masson mandataire indépendant en immobilier (sans détention de fonds), agent commercial de la SAS I@D France immatriculé au RSAC de Orléans sous le numéro 788831170, titulaire de la carte de démarchage immobilier pour le compte de la société I@D France SAS.
Mandat : 1973519
Diagnostic de Performance Énergétique (DPE)
Plus d'informations
-
Descriptif
- Étage du bien : 2eme
- Nbre. d'étages : 2
- Nbre. de chambres : 2
- Nb. de pièces : 5
-
Loi ALUR
- Copropriété
- Nombre de lots de la copropriété : 4
-
Conditions
- Honoraires à charge de : vendeur
-
Superficies
- Surface habitable : 67 m²
Localisation
Contactez nous
Pour plus d'informations sur cette annonce, n'hésitez pas à nous contacter