Annonce détaillée

Vente
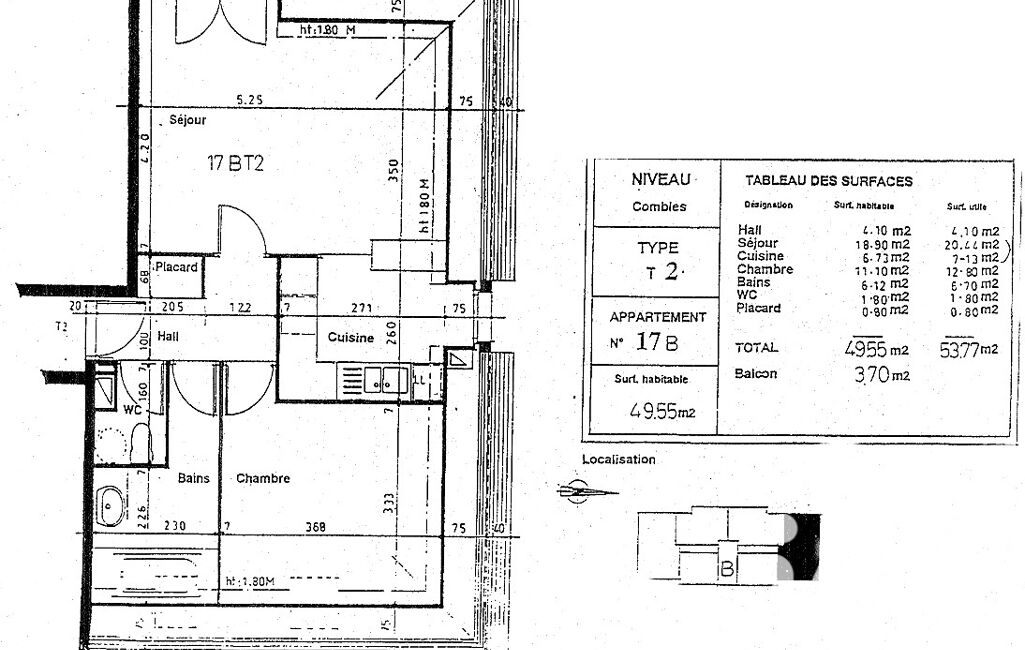
Appartement à Retiers
107 000 

Détails du bien

Pièce(s)
2 pièces
Salle(s) de bain
1
Surface
52 m²
Surface terrain
-
Orientation
-

Plus d'informations

  • Descriptif
    • Étage du bien : 2eme
    • Nbre. d'étages : 2
    • Nbre. de chambres : 1
    • Nb. de pièces : 2
  • Equipement
    • Câble TV
    • Chauffage : individuel electrique radiateur
    • Interphone
  • Loi ALUR
    • Copropriété
    • Nombre de lots de la copropriété : 72
    • Moyenne de la quote part(an) : 800 €
  • Superficies
    • Surface du balcon : 4 m²
    • Surface habitable : 52 m²
  • Etat
    • Année de construction : 1997
  • Conditions
    • Honoraires à charge de : vendeur

Localisation

Contactez nous

Pour plus d'informations sur cette annonce, n'hésitez pas à nous contacter

Guylen Guilloux

Annonce 979 / 75113