Vente
Appartement
à
Bayonne
518 000 €
Bayonne (64100)
iad France - Yannick Letellier (06 28 68 51 98) vous propose : Appartement T4 – 107 m² environ – Quartier Citadelle, Bayonne – Exposition Sud –
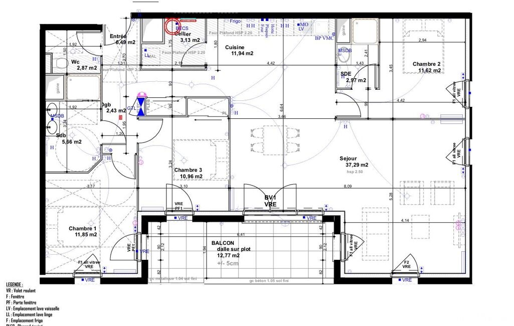
Situé dans le quartier dynamique et en pleine évolution de la Citadelle à Bayonne, ce bel appartement T4 de 107 m² environ offre un cadre de vie confortable et lumineux. Il comprend trois chambres de 11 m² environ chacune, dont une suite parentale avec sa propre salle d’eau, idéale pour préserver l’intimité.
La pièce de vie spacieuse de 39 m² environ, prolongée par une cuisine ouverte de 11 m² environ, bénéficie d’une exposition plein sud qui apporte une belle lumière naturelle tout au long de la journée. Un balcon de 12 m² environ vient compléter cet espace et vous permet de profiter de l’extérieur en toute tranquillité.
La situation de la résidence est idéale : un arrêt de bus se trouve au pied de l’immeuble, les commerces et écoles sont à proximité immédiate, la gare de Bayonne est accessible en 12 minutes à pied, et le centre-ville en 20 minutes.
Je reste à votre disposition pour tout renseignement complémentaire.
Honoraires d’agence à la charge du vendeur. Bien non soumis au DPE. Les informations sur les risques auxquels ce bien est exposé sont disponibles sur le site Géorisques : www.georisques.gouv.fr. La présente annonce immobilière a été rédigée sous la responsabilité éditoriale de M. Yannick Letellier EI (ID 86279), mandataire indépendant en immobilier (sans détention de fonds), agent commercial de la SAS I@D France immatriculé au RSAC de BAYONNE sous le numéro 939717286, titulaire de la carte de démarchage immobilier pour le compte de la société I@D France SAS.
Retrouvez tous nos biens sur notre site internet. www.iadfrance.fr
Mandat : 1782001-5
Diagnostic de Performance Énergétique (DPE)
Plus d'informations
-
Descriptif
- Étage du bien : 1er
- Ascenseur
- Nbre. d'étages : 2
- Nbre. de chambres : 3
- Nb. Parking : 1
- Nb. de pièces : 4
-
Equipement
- Câble TV
- Digicode
- Placards
- Chauffage : individuel electrique radiateur
- Interphone
-
Superficies
- Surface du balcon : 13 m²
- Surface habitable : 107 m²
-
Etat
- Année de construction : 2026
-
Conditions
- Honoraires à charge de : vendeur
Localisation
Contactez nous
Pour plus d'informations sur cette annonce, n'hésitez pas à nous contacter