Vente
Maison
à
Vallet
420 000 €
Vallet (44330)
iad France - Mathilde Griaud vous propose: Maison de plain-pied –135 m² – Prestations de qualité – Aucun travaux – Double garage de 50m² et dépendances.
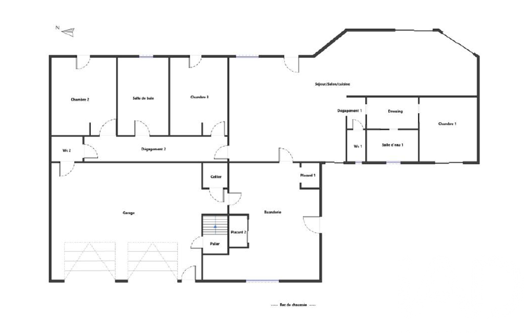
Vallet, à proximité immédiate des commodités à pieds, venez découvrir cette belle maison de plain-pied d’environ 135m² habitables, construite en 2005 et agrandie par une extension réalisée en 2019, offrant de beaux volumes et des prestations soignées.
Vous serez séduits dès l’entrée par une spacieuse et lumineuse pièce de vie, ouverte sur une très belle cuisine aménagée et équipée avec plan de travail en quartz, idéale pour partager des moments conviviaux.
L’espace nuit est parfaitement agencé :
d’un côté, une suite parentale avec dressing et salle d’eau, avec accès direct aux toilettes ,
de l’autre, deux chambres confortables ainsi qu’une grande salle de bain équipée d’une douche et d’une baignoire, ainsi qu’un second toilette.
La maison dispose également d’une grande buanderie avec rangements et espace bureau, apportant un véritable confort au quotidien.
Côté annexes, vous profiterez d’un double garage de plus de 50 m² pouvant accueillir un camping-car, d’une cave avec sol en travertin, ainsi que d’une dépendance comprenant un second garage et une pièce chauffée et aménagée.
À l’extérieur, vous bénéficierez d’un agréable jardin paysager, entièrement clos et sans vis-à-vis, ainsi que d’une grande terrasse idéale pour profiter des beaux jours.
Équipée d’un plancher chauffant et rénovée avec des matériaux de qualité, cette maison est en excellent état et ne nécessite aucun travaux.
Une maison confortable et parfaitement entretenue, à découvrir sans tarder.
Contactez-moi pour organiser une visite !
Honoraires d'agence à la charge du vendeur.
Information d'affichage énergétique sur ce bien : classe ENERGIE C indice 139 et classe CLIMAT C indice 28. Les informations sur les risques auxquels ce bien est exposé, y compris l'obligation légale de débroussaillement, sont disponibles sur le site Géorisques : http://www.georisques.gouv.fr.
La présente annonce immobilière a été rédigée sous la responsabilité éditoriale de Mme Mathilde Griaud mandataire indépendant en immobilier (sans détention de fonds), agent commercial de la SAS I@D France immatriculé au RSAC de Nantes sous le numéro 948644471, titulaire de la carte de démarchage immobilier pour le compte de la société I@D France SAS.
Mandat : 1962348
Diagnostic de Performance Énergétique (DPE)
Plus d'informations
-
Descriptif
- Terrasse
- Nbre. de chambres : 3
- Nb. de pièces : 5
-
Equipement
- Chauffage : gaz
- Interphone
-
Superficies
- Superficie terrain : 850 m²
- Surface habitable : 135 m²
-
Etat
- Année de construction : 2005
-
Conditions
- Honoraires à charge de : vendeur
Localisation
Contactez nous
Pour plus d'informations sur cette annonce, n'hésitez pas à nous contacter