Vente
Maison
à
Amboise
114 000 €
Amboise (37400)
iad France - Clarisse Leblanc vous propose: A 10 minutes d'Amboise
** Rare à LIMERAY : maison de bourg atypique avec jardinet, terrasse et fort potentiel d’aménagement **
_ Située à deux pas de commerce de proximité et écoles élémentaires _ cette maison de bourg offre un fort potentiel d’évolution pour les amateurs de projets ou les investisseurs.
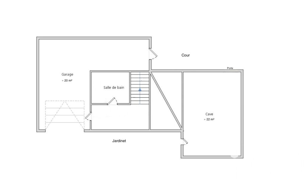
Au RDC, vous trouverez un garage ouvrant sur le petit jardinet et une salle de bains. Une grande pièce indépendante de 24 m² actuellement appelée « cave » offre de belles possibilités d’aménagement et peut être reliée à l’habitation.
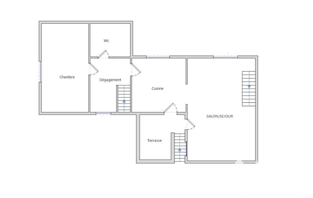
Au 1er, vous disposerez d'une cuisine, un salon/séjour donnant sur une terrasse, un toilette indépendant ainsi qu’une chambre.
Au 2ème étage, une grande chambre ainsi qu’un petit grenier complètent l’ensemble.
Des TRAVAUX SONT À PREVOIR, pour améliorer le confort et la performance énergétique.
Cette maison ancienne peut répondre à plusieurs projets : résidence principale pour primo-accédant, maison secondaire, investissement locatif ou projet type Airbnb (possibilité de faire 2 logements).
Avec sa situation idéale en centre-bourg et son prix attractif, cette maison est une véritable opportunité pour qui saura lui redonner vie.
👉 À visiter rapidement !
Honoraires d'agence à la charge du vendeur.
Information d'affichage énergétique sur ce bien : classe ENERGIE E indice 312 et classe CLIMAT C indice 12. Les informations sur les risques auxquels ce bien est exposé, y compris l'obligation légale de débroussaillement, sont disponibles sur le site Géorisques : http://www.georisques.gouv.fr.
La présente annonce immobilière a été rédigée sous la responsabilité éditoriale de Mme Clarisse Leblanc mandataire indépendant en immobilier (sans détention de fonds), agent commercial de la SAS I@D France immatriculé au RSAC de TOURS sous le numéro 539294348, titulaire de la carte de démarchage immobilier pour le compte de la société I@D France SAS.
Mandat : 1837323
Diagnostic de Performance Énergétique (DPE)
Plus d'informations
-
Descriptif
- Nbre. d'étages : 3
- Nb. de pièces : 3
-
Etat
- Année de construction : 1900
-
Conditions
- Honoraires à charge de : vendeur
-
Superficies
- Surface habitable : 80 m²
Localisation
Contactez nous
Pour plus d'informations sur cette annonce, n'hésitez pas à nous contacter