Annonce détaillée

Vente
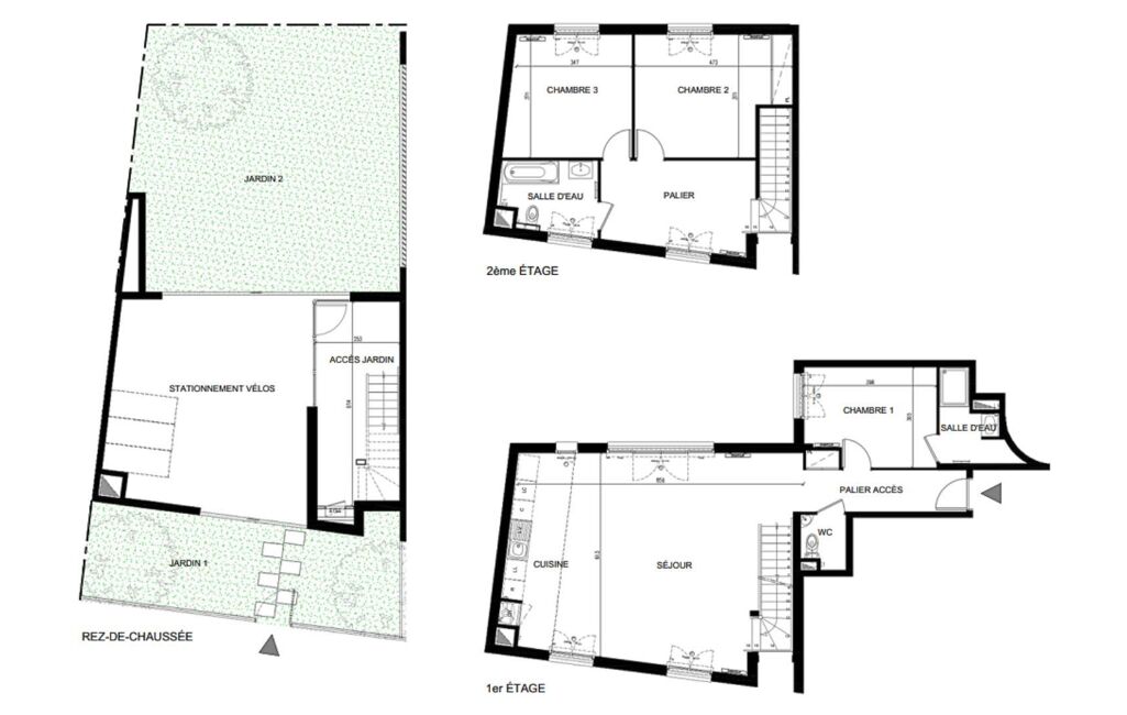
Appartement à Canet-en-Roussillon
1 390 000 

Détails du bien

Pièce(s)
5 pièces
Salle(s) de bain
4
Surface
162 m²
Surface terrain
-
Orientation
sud

Plus d'informations

  • Descriptif
    • Nb. de WC : 4
    • Nb. de salles de bain : 1
    • Nb. de salles d'eau : 2
    • Terrasse
    • Ascenseur
    • Accès handicapés
    • WC séparés
    • Nbre. de chambres : 4
    • Nb. Parking : 1
    • Nb. de pièces : 5
  • Equipement
    • Chauffage : individuel electrique
    • Interphone
    • Climatisation
  • Superficies
    • Surface terrasse : 313.63 m²
    • Surface habitable : 162 m²
  • Environnement
    • Orientation : sud
  • Etat
    • Année de construction : 2025
  • Conditions
    • Honoraires à charge de : vendeur

Localisation

Contactez nous

Pour plus d'informations sur cette annonce, n'hésitez pas à nous contacter

Philippe GUERIOT

Annonce 748 / 74135