Vente
Appartement
à
Aix-les-Bains
1 727 000 €
Aix-les-Bains (73100)
iad France - Sarah Rozière (06 99 86 19 42) vous propose : Appartement 4 pièces avec balcon à Aix-les-Bains.
BIEN LIRE L’ANNONCE !
APPARTEMENT DISPONIBLE 2029 !
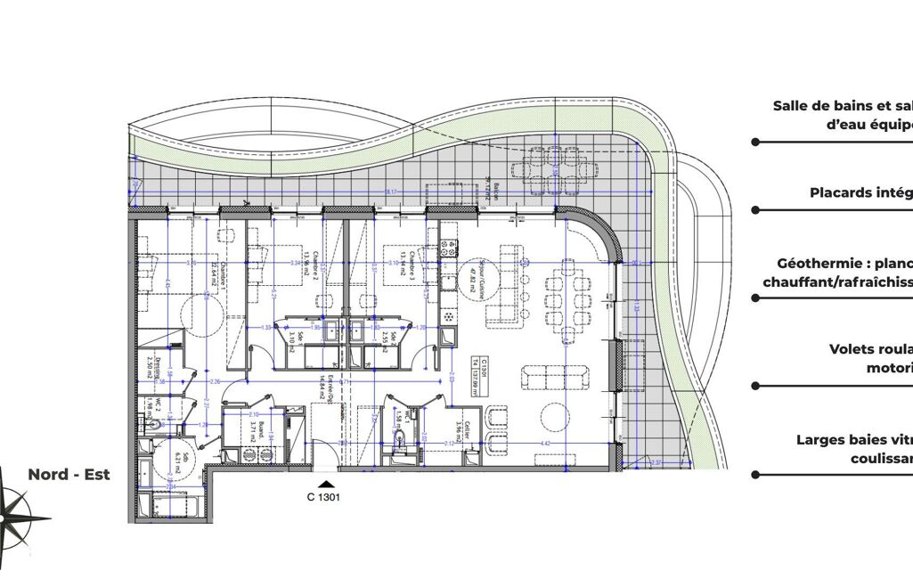
Venez découvrir ce T4 d’exception niché au 13 ème et dernier étage des Nouveaux Thermes, un lieu chargé d'histoire, d’élégance et de renouveau.
Dès l’entrée, vous serez séduit par un beau séjour avec cuisine ouverte de 48 m² environ qui se prolonge par un grand balcon de 59 m² environ. Le coin nuit est idéalement agencé avec trois chambres confortables, chacune avec leurs salles d'eau et une avec dressing.
Côté confort, vous bénéficiez d'un chauffage par géothermie avec plancher chauffant et rafraîchissant dans le séjour et les chambres. Un parking et un garage en sous-sol complètent ce bien pour stationner vos véhicules en toute sécurité.
Vivre ici, c'est profiter d’une résidence avec commerces en pied d'immeuble et bénéficier des dernières normes énergétiques et acoustiques pour une tranquillité totale sur le long terme. Pas de travaux à prévoir et vous disposez d'une liberté de personnalisation pour créer un intérieur à votre image.
Une architecture d’avant-garde : Sur la prestigieuse Place Maurice Mollard, cOEur historique d’Aix-les-Bains, découvrez une adresse qui ne ressemble à aucune autre : Les Nouveaux Thermes, renaissance contemporaine d’un site thermal majeur de la ville. Ici, l’histoire millénaire des eaux aixoises s’unit à la créativité du visionnaire Vincent Callebaut, architecte internationalement reconnu pour son architecture biomimétique, poétique et profondément écologique.
La signature d’un architecte de renommée mondiale : Imaginées par Vincent Callebaut, cette résidence émerge avec légèreté du socle thermal historique : deux silhouettes sculpturales, ondulantes, habillées de végétation et baignées de lumière naturelle.
Une OEuvre à la croisée du passé et du futur : Les appartements s’ouvrent sur de vastes terrasses végétalisées, véritables respirations suspendues face au lac du Bourget, au Revard et à la Dent du Chat. Les intérieurs, magnifiés par de grandes baies vitrées, offrent une qualité de lumière exceptionnelle et cette sensation rare d’habiter à la fois la ville et la nature.
Une résidence durable et innovante :
- Chauffage et rafraîchissement par géothermie, puisant directement son énergie dans la source historique d’Aix-les-Bains.
- Conception répondant aux normes environnementales les plus exigeantes.
- Façades végétalisées entretenues par des jardiniers professionnels.
- Parties communes sublimées par le réemploi des vitraux sérigraphiés patrimoniaux.
- Architecture pensée pour réduire l’empreinte carbone et augmenter le confort thermique.
Depuis la Place Maurice Mollard, vous profitez d’un accès immédiat à la vie aixoise : commerces, gastronomie, culture, gare, animations, parcs et activités thermales. Un emplacement exceptionnel où se conjuguent patrimoine, nature, élégance et modernité.
Augmentez votre capital en réduisant les frais de notaire et profitez d’un cadre de vie moderne, performant et clé en main.
Besoin de plus d’informations ou d’un accompagnement personnalisé ? N’hésitez pas à me contacter.
Honoraires d’agence à la charge du vendeur. Bien non soumis au DPE. Les informations sur les risques auxquels ce bien est exposé sont disponibles sur le site Géorisques : www.georisques.gouv.fr. La présente annonce immobilière a été rédigée sous la responsabilité éditoriale de Mlle Sarah Rozière EI (ID 83696), mandataire indépendant en immobilier (sans détention de fonds), agent commercial de la SAS I@D France immatriculé au RSAC de Clermont-Ferrand sous le numéro 978616993, titulaire de la carte de démarchage immobilier pour le compte de la société I@D France SAS.
Retrouvez tous nos biens sur notre site internet. www.iadfrance.fr
Mandat : 1885883-66
Diagnostic de Performance Énergétique (DPE)
Plus d'informations
-
Descriptif
- Étage du bien : 13eme
- Ascenseur
- Nbre. d'étages : 13
- Nbre. de chambres : 3
- Nb. Parking : 1
- Nb. de pièces : 4
-
Equipement
- Câble TV
- Digicode
- Placards
- Interphone
- Climatisation
-
Conditions
- Honoraires à charge de : vendeur
-
Superficies
- Surface habitable : 138 m²
Localisation
Contactez nous
Pour plus d'informations sur cette annonce, n'hésitez pas à nous contacter