Vente
Maison
à
Saint-Martin-du-Var
1 740 000 €
Saint-Martin-du-Var (06670)
iad France - Nadine Bernier vous propose: Propriété au Calme avec Vue Panoramique – Saint-Martin-du-Var 06670, possible sur demande de pèrmis construction sur le terrain, Quartier des Condamines
Située dans un secteur très recherché, cette propriété de 1,7 hectare, exposée plein sud, offre un cadre de vie préservé, sans vis-à-vis, avec une vue dominante sur la vallée du Var, Carros Village et Le Broc. L’accès se fait par une route privée en impasse, garantissant une tranquillité totale.
Elle se compose de deux habitations indépendantes :
Maison provençale des années 40, entièrement rénovée, actuellement aménagée en deux appartements pouvant être réunis. Charme authentique, terrasses, cheminée, poêle à bois, bon DPE.
Maison en bois de plain-pied, atypique et chaleureuse, équipée d’un poêle à bois et d’un chauffe-eau solaire. Parfait pour un mode de vie nature, une activité d’accueil ou un logement annexe.
Le terrain comprend également :
Ancien bâtiment agricole d’environ 300 m² (actuellement utilisé en chenil)
Double garage, atelier, nombreuses places de stationnement
Petite écurie pouvant accueillir jusqu’à 2 chevaux
Bassin d’irrigation à remettre en service
Pinède, oliviers centenaires, figuiers, chênes, cyprès…
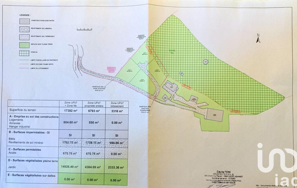
Côté urbanisme :
6 793 m² constructibles et piscinables autour de la maison principale (zone UD – R+1 – COS 0,15 %, bâti existant inclus)
Viabilités en gravitaire
Projet de lotissement de 4 lots en cours d’étude sur une partie du terrain constructible (3 316 m²)
Localisation idéale :
2 min de la RM6202
5 min commerces, écoles, crèche, collège, transports
15 min Allianz Riviera
20 min Aéroport de Nice
40 min Cannes – 45 min Monaco
1 h des stations de ski (Beuil/Valberg)
Un bien rare, proche de toutes commodités tout en offrant un cadre exceptionnel et un fort potentiel d’aménagement.
À visiter sans tarder.
Honoraires d'agence à la charge du vendeur.
Information d'affichage énergétique sur ce bien : classe ENERGIE C indice 122 et classe CLIMAT A indice 3. Les informations sur les risques auxquels ce bien est exposé, y compris l'obligation légale de débroussaillement, sont disponibles sur le site Géorisques : http://www.georisques.gouv.fr.
La présente annonce immobilière a été rédigée sous la responsabilité éditoriale de Mme Nadine Bernier mandataire indépendant en immobilier (sans détention de fonds), agent commercial de la SAS I@D France immatriculé au RSAC de NICE sous le numéro 813648151, titulaire de la carte de démarchage immobilier pour le compte de la société I@D France SAS.
Mandat : 1783844
Diagnostic de Performance Énergétique (DPE)
Plus d'informations
-
Descriptif
- Cave
- Terrasse
- Nbre. d'étages : 1
- Nbre. de chambres : 3
- Nb. Parking : 1
- Nb. de pièces : 7
-
Equipement
- Câble TV
- Cheminée
- Chauffage : electrique
-
Superficies
- Superficie terrain : 17392 m²
- Surface habitable : 206 m²
-
Etat
- Année de construction : 1940
-
Conditions
- Honoraires à charge de : vendeur
Localisation
Contactez nous
Pour plus d'informations sur cette annonce, n'hésitez pas à nous contacter