Vente
Appartement
à
Saint-Laurent-du-Var
439 000 €
Saint-Laurent-du-Var (06700)
iad France - Sarah Rozière (06 99 86 19 42) vous propose : Appartement T3 avec balcon à Saint-Laurent-du-Var.
Située avenue du Général Leclerc à Saint-Laurent-du-Var, la résidence Palm Square s’inscrit au cOEur du nouveau centre-ville, autour de la place piétonne du Square Bènes. Son architecture contemporaine végétalisée et son environnement urbain offrent un cadre de vie moderne, pratique et recherché, à proximité immédiate des commerces, des transports et du bord de mer. Disponible 2027.
Un appartement raffiné :
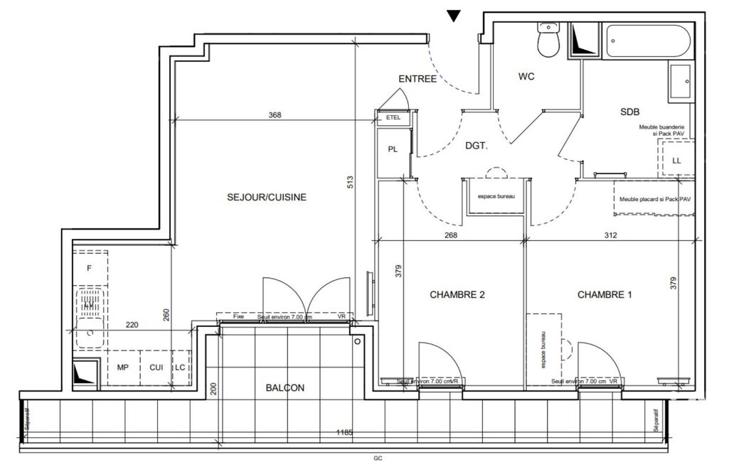
Situé au 3 ème étage, cet appartement T3 de 61 m² environ habitables se prolonge par un balcon de 13 m² environ.
- Séjour/cuisine de 24 m² environ.
- Deux chambres confortables.
- Salle de bains moderne équipée.
- Annexe incluse : un garage.
De belles prestations :
- Chauffage collectif par pompe à chaleur.
- Volets roulants motorisés et menuiseries PVC double vitrage.
- Résidence sécurisée avec vidéophone, ascenseur et stationnements en sous-sol.
L’art de vivre à Saint-Laurent-du-Var :
- Commerces, écoles, crèche et services accessibles à pied.
- À quelques minutes des plages, du port de plaisance et du bord de mer.
- À proximité immédiate du parc des Rives du Var et du centre commercial Cap 3000.
- Accès rapide à Nice, à l’aéroport et aux grands axes routiers.
N’hésitez pas à me contacter pour plus d’informations ou pour un accompagnement sur mesure.
Honoraires d’agence à la charge du vendeur. Bien non soumis au DPE. Les informations sur les risques auxquels ce bien est exposé sont disponibles sur le site Géorisques : www.georisques.gouv.fr. La présente annonce immobilière a été rédigée sous la responsabilité éditoriale de Mlle Sarah Rozière EI (ID 83696), mandataire indépendant en immobilier (sans détention de fonds), agent commercial de la SAS I@D France immatriculé au RSAC de Clermont-Ferrand sous le numéro 978616993, titulaire de la carte de démarchage immobilier pour le compte de la société I@D France SAS.
Retrouvez tous nos biens sur notre site internet. www.iadfrance.fr
Mandat : 1908518-15
Diagnostic de Performance Énergétique (DPE)
Plus d'informations
-
Descriptif
- Étage du bien : 3eme
- Ascenseur
- Nbre. d'étages : 5
- Nbre. de chambres : 2
- Nb. de pièces : 3
-
Equipement
- Câble TV
- Digicode
- Placards
- Interphone
-
Conditions
- Honoraires à charge de : vendeur
-
Superficies
- Surface habitable : 61 m²
Localisation
Contactez nous
Pour plus d'informations sur cette annonce, n'hésitez pas à nous contacter