Vente
Maison
à
Rezé
305 000 €
Rezé (44400)
iad France - Alexandra Picot vous propose: EXCLUSIVITÉ – MAISON CONTEMPORAINE À REZÉ – PROCHE NANTES - disponible dès maintenant
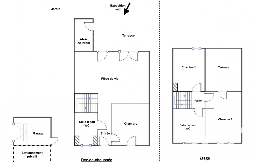
Située au calme, à Rezé, à proximité immédiate de Nantes, cette agréable maison contemporaine à toit plat, construite selon les normes en vigueur en 2017, saura vous séduire.
Édifiée sur une parcelle de 245 m², cette maison mitoyenne d’un côté se trouve au sein d’une petite copropriété bien entretenue, avec de faibles charges.
Dès l’entrée, vous découvrirez un rez-de-chaussée bien agencé comprenant une chambre, une salle d’eau avec WC, ainsi qu’une pièce de vie lumineuse avec cuisine ouverte, bénéficiant d’une exposition sud-est idéale.
À noter : possibilité d’ouvrir la chambre du rez-de-chaussée afin d’agrandir encore davantage l’espace de vie.
À l’étage, le palier dessert deux chambres, dont une avec terrasse privative, ainsi qu’une salle de bain avec WC.
Côté extérieur, vous profiterez d’un jardin arboré agréable, complété par un cabanon de jardin.
Un garage privatif ainsi qu’une place de stationnement privative viennent parfaire ce bien.
Prestations de qualité :
•Chauffage par chaudière gaz de ville et poêle à granulés
•Installation électrique conforme
•Construction de moins de 10 ans
Informations complémentaires :
•Taxe foncière : 1 438 € / an
•Charges de copropriété : 150 € / an (entretien des allées extérieures et éclairage)
Idéalement située, cette maison bénéficie d’un excellent accès aux transports, avec écoles et commerces à proximité immédiate.
Je suis plus facilement joignable par téléphone pour répondre à vos questions et organiser une visite.
La presente annonce immobiliere vise 3 lots situés dans une copropriété de 36 lots au total et ne faisant l'objet d'aucune procédure en cours citée à l'article L. 721-1 du code de la construction et de l'habitation. Montant moyen mensuel de charges déclaré par le vendeur : 12.5€ par mois (soit 150 € annuel). Honoraires d'agence à la charge de l'acquéreur. Prix honoraires inclus : 305000 euros. Prix hors honoraires : 293000 euros. Honoraires TTC à la charge de l'acquéreur (4,10% du prix du bien hors honoraires) : 12000 euros.
Information d'affichage énergétique sur ce bien : classe ENERGIE C indice 104 et classe CLIMAT C indice 17. Les informations sur les risques auxquels ce bien est exposé, y compris l'obligation légale de débroussaillement, sont disponibles sur le site Géorisques : http://www.georisques.gouv.fr.
La présente annonce immobilière a été rédigée sous la responsabilité éditoriale de Mme Alexandra Picot mandataire indépendant en immobilier (sans détention de fonds), agent commercial de la SAS I@D France immatriculé au RSAC de ANGERS sous le numéro 821454873, titulaire de la carte de démarchage immobilier pour le compte de la société I@D France SAS.
Mandat : 1980250
Diagnostic de Performance Énergétique (DPE)
Plus d'informations
-
Descriptif
- Terrasse
- Nbre. d'étages : 2
- Nbre. de chambres : 3
- Nb. Parking : 1
- Nb. de pièces : 4
-
Equipement
- Câble TV
- Placards
- Chauffage : gaz radiateur
-
Conditions
- Honoraires : 12 000 €
- Prix hors honoraires acquéreur : 293 000 €
- Honoraires à charge de : acquéreur
-
Loi ALUR
- Copropriété
- Nombre de lots de la copropriété : 36
- Moyenne de la quote part(an) : 150 €
-
Superficies
- Superficie terrain : 245 m²
- Surface habitable : 83 m²
-
Etat
- Année de construction : 2017
Localisation
Contactez nous
Pour plus d'informations sur cette annonce, n'hésitez pas à nous contacter