Vente
Appartement
à
Saint-Germain-en-Laye
429 000 €
Saint-Germain-en-Laye (78100)
iad France - Sarah Rozière (06 99 86 19 42) vous propose : Appartement T3 avec balcon à Saint-Germain-en-Laye.
Située rue de Boufflers, au cOEur d’un domaine privé boisé, la résidence Le Jardin des Carmes offre un cadre de vie mêlant nature, élégance et sérénité. À quelques minutes du centre historique de Saint-Germain-en-Laye, cette résidence conjugue confort moderne, respect de l’environnement et authenticité architecturale. Disponible 2027.
Un appartement raffiné :
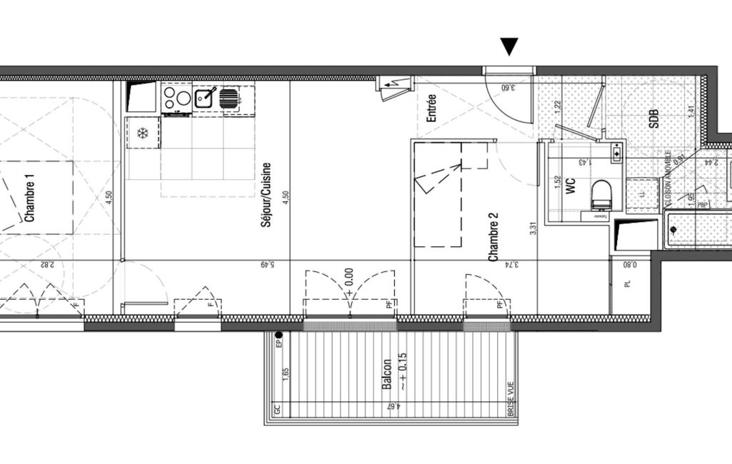
Situé au 2 ème étage, cet appartement T3 de 61 m² environ habitables se prolonge par un balcon de 8 m² environ.
- Séjour/cuisine de 24 m² environ.
- Deux chambres confortables.
- Une salle de bains moderne.
- Annexe incluse : un parking intérieur.
De belles prestations :
- Chauffage urbain et eau chaude collective pour une gestion énergétique maîtrisée.
- Résidence sécurisée, avec visiophone couleur, local à vélos et espaces verts paysagers en cOEur d’îlot.
- Espace boisé classé, promenades, et faune protégée intégrés à l’environnement résidentiel.
L’art de vivre à Saint-Germain-en-Laye :
- À 9 min à vélo de la gare RER A et à 25 min de Paris – Porte de Neuilly.
- Écoles d’excellence, commerces et restaurants à proximité immédiate.
- Forêt domaniale, parc du Château et équipements culturels accessibles à pied.
N’hésitez pas à me contacter pour plus d’informations ou pour un accompagnement sur mesure.
Honoraires d’agence à la charge du vendeur. Bien non soumis au DPE. Les informations sur les risques auxquels ce bien est exposé sont disponibles sur le site Géorisques : www.georisques.gouv.fr. La présente annonce immobilière a été rédigée sous la responsabilité éditoriale de Mlle Sarah Rozière EI (ID 83696), mandataire indépendant en immobilier (sans détention de fonds), agent commercial de la SAS I@D France immatriculé au RSAC de Clermont-Ferrand sous le numéro 978616993, titulaire de la carte de démarchage immobilier pour le compte de la société I@D France SAS.
Retrouvez tous nos biens sur notre site internet. www.iadfrance.fr
Mandat : 1867431-5
Diagnostic de Performance Énergétique (DPE)
Plus d'informations
-
Descriptif
- Étage du bien : 2eme
- Ascenseur
- Nbre. d'étages : 4
- Nbre. de chambres : 2
- Nb. Parking : 1
- Nb. de pièces : 3
-
Equipement
- Câble TV
- Digicode
- Placards
- Interphone
-
Conditions
- Honoraires à charge de : vendeur
-
Superficies
- Surface habitable : 61 m²
Localisation
Contactez nous
Pour plus d'informations sur cette annonce, n'hésitez pas à nous contacter