Vente
Maison
à
Dommartin
850 000 €
Dommartin (69380)
iad France - Elodie Abrami vous propose: Découvrez cette magnifique propriété de 282 m² (surface totale au sol : 337,48 m²) avec vue panoramique exceptionnelle et très rare, édifiée sur une parcelle de 3 910 m² avec jardin paysager à Dommartin.
Plongez au cOEur d’un cadre privilégié avec cette maison de caractère qui conjugue prestations haut de gamme, calme absolu et vue panoramique extraordinaire. Un véritable coup de cOEur pour les amateurs de grands espaces et de sérénité.
Des Espaces généreux et lumineux :
Cette demeure d’exception de 8 pièces, réparties sur trois niveaux, offre des volumes généreux et un aménagement modulable :
Niveau séjour & suite parentale (niveau supérieur) :
- Une vaste pièce de vie d’hiver (séjour-salon) d'environ 40 m2 lumineuse avec cheminée, idéal pour des moments de convivialité en hiver.
- Une cuisine séparée et équipée de chez Bulthaup.
- Une suite parentale avec salle de bains attenante et un wc
- Une seconde chambre/bureau.
- À l’extérieur : une double terrasse en coursive offrant une vue dégagée, très rare et sans vis-à-vis.
Niveau enfants (niveau intermédiaire) :
- Trois chambres confortables, chacune disposant de sa salle d'eau privative, et deux WC.
- Un dégagement (16,7m2) pouvant faire office de bureau, couloir et une chaufferie/buanderie.
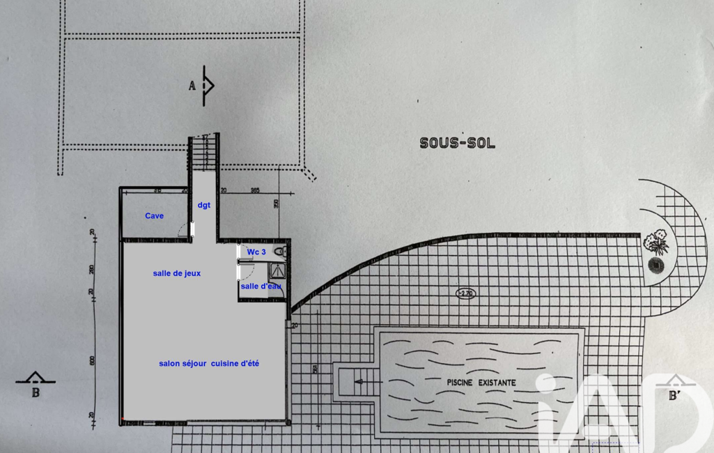
Niveau Vaste Pièce de vie d'été (niveau du bas, face à la piscine):
- Une salle de jeux / sport, parfaite pour l’été et les réceptions.
- Une cuisine d’été.
- Une salle d'eau, un WC et une cave.
Ce niveau est ouvert sur le jardin par 4 grandes baies vitrées.
Prestations de Qualité :
La propriété est en excellent état et dispose d’équipements offrant un confort optimal : Chauffage individuel par pompe à chaleur air / eau, et cheminée à foyer fermé, centrale photovoltaïque avec revenus de : 1500 €/an.
Exposition idéale, garantissant une luminosité naturelle tout au long de la journée.
Extérieurs Soignés :
Le terrain de près de 4 000 m² se compose d’un jardin paysagé, plat sur deux niveaux assortie d’une forêt en contrebas.
Vous profiterez également :
D’une piscine avec pompe à chaleur, parfaite pour se détendre en famille.
D’une vaste terrasse de 70m2.
Terrain de pétanque.
Plusieurs emplacements de stationnement.
D’un grand garage pouvant accueillir plusieurs véhicules et offrant un espace de stockage supplémentaire.
La propriété dispose de nombreux rangements (placards, penderies, dressings)
Un Emplacement Idéal :
Située dans un secteur résidentiel calme et prisé de Dommartin, cette propriété bénéficie d’une voie privée et d’un cadre de vie exceptionnel tout en étant proche des commodités et des grands axes.
Cette maison, construite en 1960, bénéficie d'une salle de réception moderne ajoutée en 2003 et d'un garage annexe de 50m² récemment construit en 2023, offrant ainsi un mélange parfait de charme ancien et d'aménagements récents et fonctionnels.
Ce véritable havre de paix n’attend plus que vous. Contactez-nous dès aujourd’hui pour organiser une visite !
Honoraires d'agence à la charge du vendeur.
Information d'affichage énergétique sur ce bien : classe ENERGIE B indice 80 et classe CLIMAT A indice 2. Les informations sur les risques auxquels ce bien est exposé, y compris l'obligation légale de débroussaillement, sont disponibles sur le site Géorisques : http://www.georisques.gouv.fr.
La présente annonce immobilière a été rédigée sous la responsabilité éditoriale de Mme Elodie Abrami mandataire indépendant en immobilier (sans détention de fonds), agent commercial de la SAS I@D France immatriculé au RSAC de Lyon sous le numéro 850597501, titulaire de la carte de démarchage immobilier pour le compte de la société I@D France SAS.
Mandat : 1939014
Diagnostic de Performance Énergétique (DPE)
Plus d'informations
-
Descriptif
- Cave
- Terrasse
- Nbre. d'étages : 3
- Nbre. de chambres : 5
- Nb. Parking : 1
- Nb. de pièces : 8
-
Equipement
- Câble TV
- Cheminée
- Placards
- Chauffage : electrique
- Interphone
-
Superficies
- Superficie terrain : 3910 m²
- Surface habitable : 282 m²
-
Extérieur
- Piscine
-
Etat
- Année de construction : 1960
-
Conditions
- Honoraires à charge de : vendeur
Localisation
Contactez nous
Pour plus d'informations sur cette annonce, n'hésitez pas à nous contacter