Vente
Duplex
à
Paris
1 498 000 €
Paris (75003)
iad France - Céleste Barat vous propose: APPARTEMENT LOFT / ATYPIQUE DE 120 M² 4 Chambres – USAGE MIXTE – PARIS 3e-
Le Marais : patrimoine vivant, charme intemporel et adresse convoitée
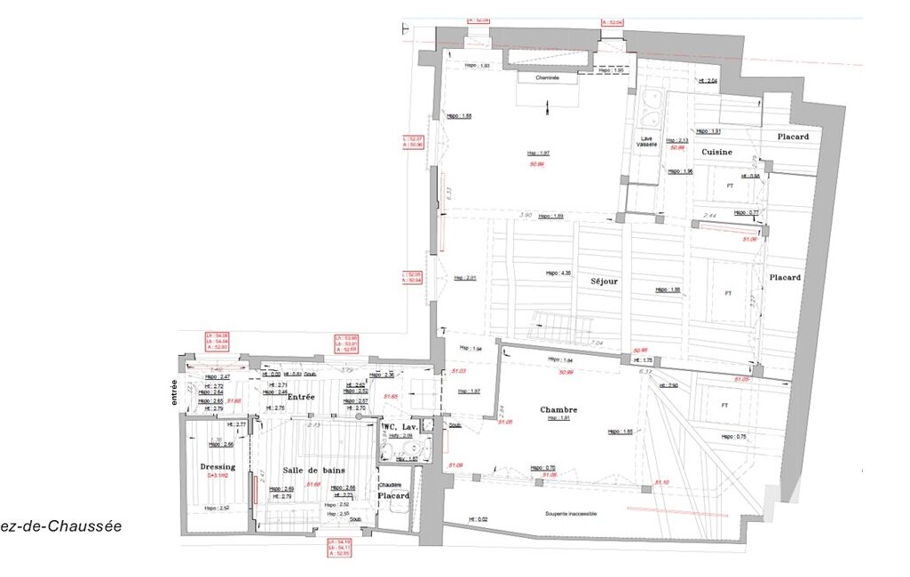
Situé au cOEur du Marais – l’un des plus anciens et emblématiques quartiers de Paris, entre hôtels particuliers, galeries et art de vivre – ce bien rare de 120 m² en rez-de-chaussée séduit par son authenticité et son potentiel unique.
Issu de la réhabilitation d’une ancienne tannerie, cet appartement au style loft bénéficie de beaux volumes, de luminosité et d’un cadre de vie calme, avec destination mixte possible (résidentielle ou professionnelle, voire les deux).
✨ Ses 120 M2 se déclinent ainsi, tout en vous offrant, un mode de vie plain pied :
Au rez de chaussée :
une salle de repas, une cuisine, un salon, une chambre / salle de musique , une buanderie OU chambre, une salle d'eau et 2 toilettes.
A L'étage :
deux chambres, chacune avec sa salle d'eau et ses toilettes, offrant ainsi à chaque niveau sa propre autonomie.
✨Son esprit atelier, sa hauteur sous plafond, ses matériaux bruts, son charme atypique, sa
sa grande cour commune fleurie, et son côté espiègle sauront vous interpeller.
Nombreux rangements, et petite cave accessible de l'intérieur.
un gardien est présent dans l’immeuble pour votre confort de vie.
Possibilité de créer une terrasse privative de 16 m² sur le toit (sous réserve des autorisations réglementaires)
Destination mixte autorisée : habitation ou usage professionnel ou les 2.
Diagnostics techniques :
✨DPE : Classe D et C /Énergie finale : 158 kWh/m²/an
votre conseillère, disponible 7j/7 pour répondre à vos questions et organiser une visite.
La presente annonce immobiliere vise 2 lots situés dans une copropriété de 51 lots au total et ne faisant l'objet d'aucune procédure en cours citée à l'article L. 721-1 du code de la construction et de l'habitation. Montant moyen mensuel de charges déclaré par le vendeur : 416€ par mois (soit 4992 € annuel). Honoraires d'agence à la charge du vendeur.
Information d'affichage énergétique sur ce bien : classe ENERGIE D indice 223 et classe CLIMAT D indice 28. Les informations sur les risques auxquels ce bien est exposé, y compris l'obligation légale de débroussaillement, sont disponibles sur le site Géorisques : http://www.georisques.gouv.fr.
La présente annonce immobilière a été rédigée sous la responsabilité éditoriale de Mme Céleste Barat mandataire indépendant en immobilier (sans détention de fonds), agent commercial de la SAS I@D France immatriculé au RSAC de EVRY sous le numéro 344127568, titulaire de la carte de démarchage immobilier pour le compte de la société I@D France SAS.
Mandat : 1773098
Diagnostic de Performance Énergétique (DPE)
Plus d'informations
-
Equipement
- Câble TV
- Digicode
- Chauffage : individuel gaz radiateur
- Interphone
-
Descriptif
- Ascenseur
- Nbre. d'étages : 1
- Nbre. de chambres : 3
- Nb. de pièces : 5
-
Loi ALUR
- Copropriété
- Nombre de lots de la copropriété : 51
- Moyenne de la quote part(an) : 4 992 €
-
Etat
- Année de construction : 1914
-
Conditions
- Honoraires à charge de : vendeur
-
Superficies
- Surface habitable : 120 m²
Localisation
Contactez nous
Pour plus d'informations sur cette annonce, n'hésitez pas à nous contacter