Vente
Maison
à
Villecresnes
468 000 €
Villecresnes (94440)
iad France - Jean-Marc Thomas vous propose: *** PROPRIÉTÉ DE CHARME, TRÈS CONFORTABLE, SPACIEUSE ET LUMINEUSE ***.
Belle bâtisse traditionnelle de 197 m² habitables, édifiée sur parcelle privée de 430 m².
Cette maison a vraiment beaucoup à offrir ! Avec ses sept pièces principales et ses cinq chambres, elle offre amplement d'espace pour une famille ou même pour ceux qui aiment avoir de l'espace supplémentaire pour un bureau ou des loisirs. Elle réserve également de belles surprises à découvrir.
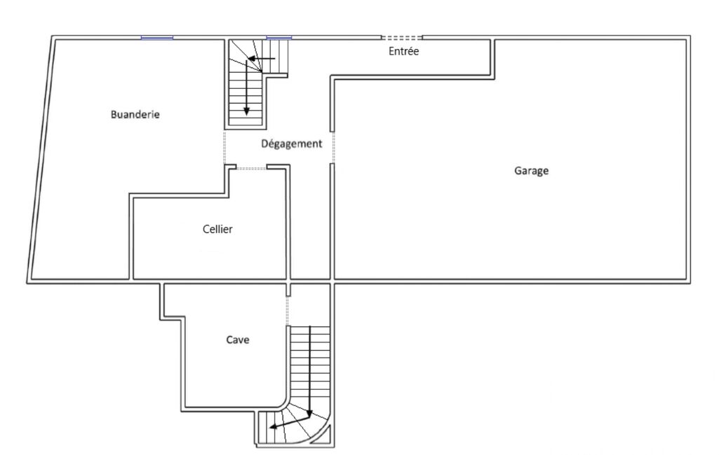
** REZ-DE-CHAUSSÉE ** : entrée sur couloir de dégagement menant à un escalier d'accès au rez-de-jardin. Ce niveau comprend un grand garage pouvant accueillir deux voitures, une buanderie/chaufferie pratique, un cellier et une cave à vin(s) pour les amateurs.
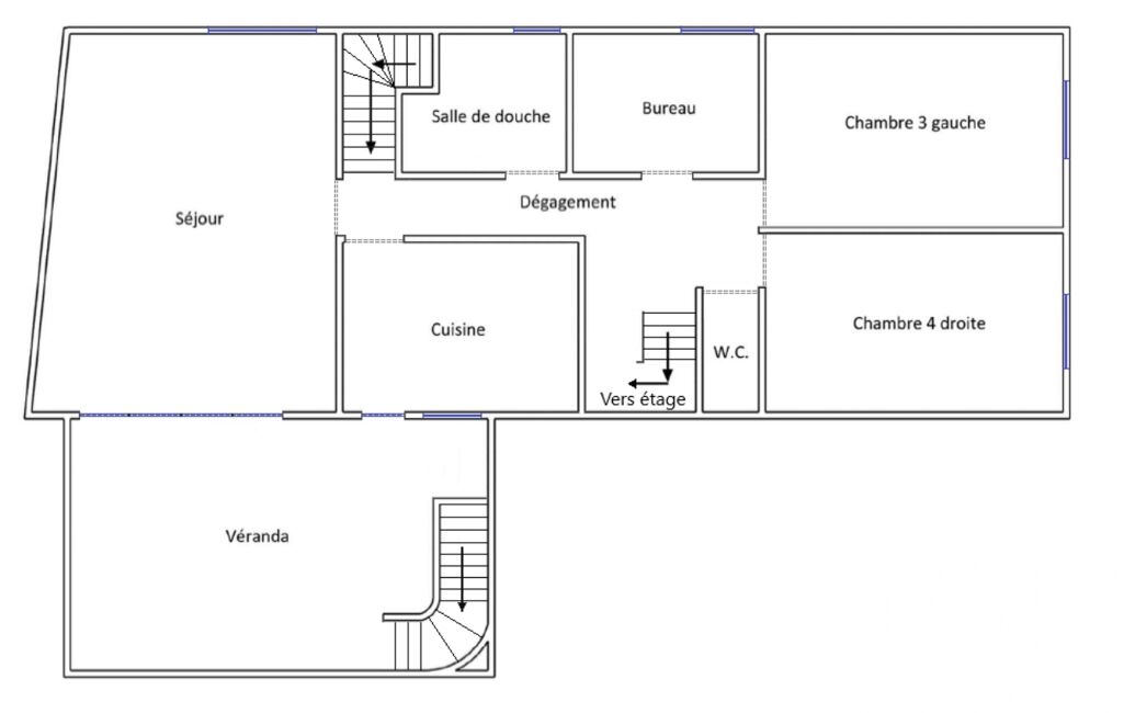
** REZ-DE-JARDIN ** : le cOEur de la maison. Vous découvrirez un beau séjour orné de belles tomettes Provençales, donnant sur une véranda de plain-pied et un jardin orienté plein Sud, offrant un cadre idéal pour les moments de détente en plein air. La cuisine aménagée et équipée est fonctionnelle et conviviale. Le coin nuit propose trois chambres confortables, une salle de bains avec baignoire et douche à l'italienne, ainsi que des WC indépendants.
** ÉTAGE ** : les combles entièrement aménagés offrent un espace polyvalent comprenant deux grandes chambres, une salle de jeux pouvant être transformée en une belle chambre supplémentaire selon vos besoins, une salle d'eau et des WC séparés.
** EXTÉRIEUR ** : la maison bénéficie d'une toiture récente et bien entretenue ainsi que des huisseries en double vitrage, assurant une isolation optimale. Deux emplacements pour véhicules (en supplément du garage) dans la propriété, ainsi qu'un autre possible devant le portail automatique.
** GÉNÉRAL ** : cette maison de belle construction est très lumineuse, propre et parfaitement entretenue. Elle est équipée d'un système de chauffage au gaz naturel avec une chaudière FRISQUET à condensation, garantissant confort et économies d'énergie. De plus, préparez-vous à découvrir de belles surprises qui rendront cette maison encore plus spéciale !
Ne manquez pas cette opportunité d'acquérir une résidence familiale où il fait bon vivre ! Contactez-moi dès aujourd'hui pour organiser une visite.
VOTRE CONSEILLER JOIGNABLE ET DISPONIBLE 7jrs/7.
Honoraires d'agence à la charge du vendeur.
Information d'affichage énergétique sur ce bien : classe ENERGIE D indice 225 et classe CLIMAT D indice 49. Les informations sur les risques auxquels ce bien est exposé, y compris l'obligation légale de débroussaillement, sont disponibles sur le site Géorisques : http://www.georisques.gouv.fr.
La présente annonce immobilière a été rédigée sous la responsabilité éditoriale de M Jean-Marc Thomas mandataire indépendant en immobilier (sans détention de fonds), agent commercial de la SAS I@D France immatriculé au RSAC de Creteil sous le numéro 437842032, titulaire de la carte de démarchage immobilier pour le compte de la société I@D France SAS.
Mandat : 1753638
Diagnostic de Performance Énergétique (DPE)
Plus d'informations
-
Equipement
- Cheminée
- Chauffage : gaz radiateur
- Interphone
- Climatisation
-
Descriptif
- Nbre. d'étages : 2
- Nbre. de chambres : 5
- Nb. de pièces : 7
-
Superficies
- Superficie terrain : 430 m²
- Surface habitable : 197 m²
-
Conditions
- Honoraires à charge de : vendeur
Localisation
Contactez nous
Pour plus d'informations sur cette annonce, n'hésitez pas à nous contacter