Vente
Maison
à
Dreux
175 000 €
Dreux (28100)
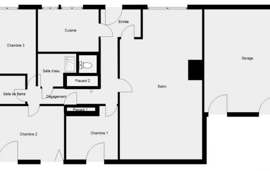
iad France - Morgane Alexis vous propose: Idéalement située à Dreux, à proximité immédiate de la RN12 et de toutes les commodités, cette maison de plain pied d’environ 92 m² vous séduira par ses volumes et ses nombreuses possibilités d’aménagement. Elle est édifiée sur une parcelle de 500 m².
Dès l’entrée, vous découvrez une distribution agréable avec une cuisine dinatoire indépendante et un double séjour lumineux d’environ 35 m², agrémenté d’une cheminée à foyer ouvert, pouvant être remplacée par un poêle à bois ou à granulés.
L’espace nuit se compose de trois chambres, d’une salle de bain, d’une salle d’eau et d’un WC indépendant.
À l’extérieur, vous profitez d’un jardin entièrement clos, exposé sud-est, ainsi que d’un garage spacieux d’environ 25 m², idéal pour stationner un véhicule, stocker ou aménager un espace atelier selon vos besoins.
Des travaux de rafraîchissement sont à prévoir, laissant place à une belle opportunité de personnaliser cette maison selon vos envies et de révéler tout son potentiel. Des propositions d’aménagements plus modernes ont été réalisées afin de vous aider à vous projeter.
++ Ses atouts ++ : proximité des commodités, confort du plain pied, belle pièce de vie, exposition sud-est.
Une visite virtuelle est proposée : n’hésitez pas à la découvrir pour vous projeter pleinement et découvrir le potentiel de cette maison.
Avis aux confrères : je pratique l'interagence, contactez-moi pour organiser une visite avec vos clients.
Honoraires d'agence à la charge de l'acquéreur. Prix honoraires inclus : 175000 euros. Prix hors honoraires : 167000 euros. Honoraires TTC à la charge de l'acquéreur (4,79% du prix du bien hors honoraires) : 8000 euros.
Information d'affichage énergétique sur ce bien : classe ENERGIE D indice 177 et classe CLIMAT D indice 37. Les informations sur les risques auxquels ce bien est exposé, y compris l'obligation légale de débroussaillement, sont disponibles sur le site Géorisques : http://www.georisques.gouv.fr.
La présente annonce immobilière a été rédigée sous la responsabilité éditoriale de Mme Morgane Alexis mandataire indépendant en immobilier (sans détention de fonds), agent commercial de la SAS I@D France immatriculé au RSAC de Versailles sous le numéro 951113935, titulaire de la carte de démarchage immobilier pour le compte de la société I@D France SAS.
Mandat : 1974513
Diagnostic de Performance Énergétique (DPE)
Plus d'informations
-
Conditions
- Honoraires : 8 000 €
- Prix hors honoraires acquéreur : 167 000 €
- Honoraires à charge de : acquéreur
-
Descriptif
- Nbre. de chambres : 3
- Nb. de pièces : 4
-
Superficies
- Superficie terrain : 500 m²
- Surface habitable : 92 m²
-
Equipement
- Chauffage : gaz radiateur
-
Etat
- Année de construction : 1976
Localisation
Contactez nous
Pour plus d'informations sur cette annonce, n'hésitez pas à nous contacter