Vente
Terrain
à
Faumont
99 000 €
Faumont (59310)
iad France - Thomas Bricout vous propose: Terrain à vendre à Faumont
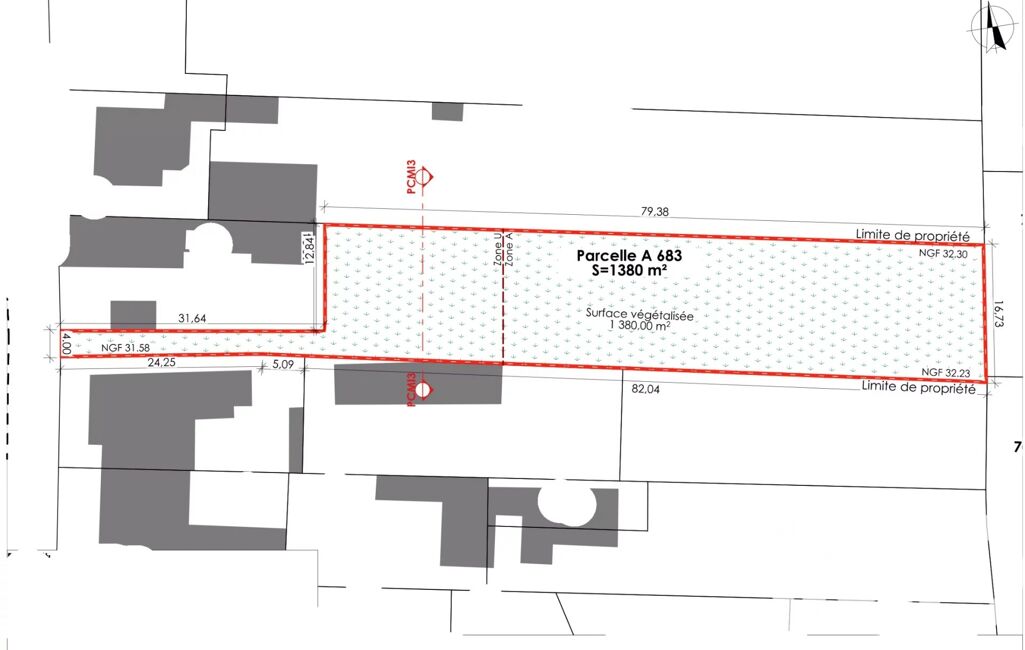
Terrain constructible en second rang d’une superficie de 1 380 m², situé dans un secteur très calme de la commune de Faumont. Il bénéficie d’une vue dégagée et d’une exposition sud-est, idéale pour profiter d’un environnement agréable.
Le terrain est non viabilisé.
Un permis de construire a déjà été accordé, permettant de reprendre le projet existant ou d’imaginer une nouvelle construction selon vos besoins, sous réserve des démarches d’urbanisme.
Prix : 99 000 €.
Pour plus d’informations ou organiser une visite, n’hésitez pas à me contacter.
Honoraires d'agence à la charge du vendeur.
Bien non soumis au DPE. Les informations sur les risques auxquels ce bien est exposé, y compris l'obligation légale de débroussaillement, sont disponibles sur le site Géorisques : http://www.georisques.gouv.fr.
La présente annonce immobilière a été rédigée sous la responsabilité éditoriale de M Thomas Bricout mandataire indépendant en immobilier (sans détention de fonds), agent commercial de la SAS I@D France immatriculé au RSAC de Douai sous le numéro 888730413, titulaire de la carte de démarchage immobilier pour le compte de la société I@D France SAS.
Mandat : 1971247
Diagnostic de Performance Énergétique (DPE)
Plus d'informations
-
Conditions
- Honoraires à charge de : vendeur
-
Superficies
- Superficie terrain : 1380 m²
Localisation
Contactez nous
Pour plus d'informations sur cette annonce, n'hésitez pas à nous contacter