Vente
Appartement
à
Colombes
260 000 €
Colombes (92700)
iad France - Laurence Lamarre vous propose:
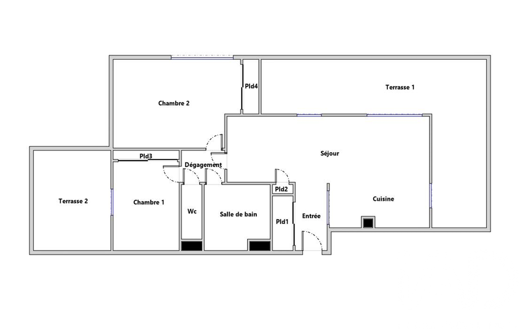
Coup de cOEur assuré pour ce superbe 3 pièces traversant, idéalement situé au cOEur du quartier très recherché des Vallées à Colombes.
Il se compose d'un espace de vie avec cuisine ouverte aménagée, de deux chambres et d'une salle de douche avec wc.
Localisation Premium : À quelques pas de la Gare des Vallées (Ligne L - Paris Saint-Lazare en 12 min).
Vie de quartier idéale : Commerces de bouche, marché des Vallées et écoles de renom à proximité immédiate. Tout se fait à pied !
Lumière et Espace : Appartement traversant offrant une double exposition pour une luminosité optimale et une ventilation naturelle.
Sérénité Totale : Immeuble parfaitement entretenu avec une chaudière collective votée et payée. Un vrai confort thermique et financier pour les années à venir !
La presente annonce immobiliere vise 2 lots situés dans une copropriété de 30 lots au total et ne faisant l'objet d'aucune procédure en cours citée à l'article L. 721-1 du code de la construction et de l'habitation. Montant moyen mensuel de charges déclaré par le vendeur : 200€ par mois (soit 2400 € annuel). Honoraires d'agence à la charge du vendeur.
Information d'affichage énergétique sur ce bien : classe ENERGIE D indice 182 et classe CLIMAT C indice 21. Les informations sur les risques auxquels ce bien est exposé, y compris l'obligation légale de débroussaillement, sont disponibles sur le site Géorisques : http://www.georisques.gouv.fr.
La présente annonce immobilière a été rédigée sous la responsabilité éditoriale de Mme Laurence Lamarre mandataire indépendant en immobilier (sans détention de fonds), agent commercial de la SAS I@D France immatriculé au RSAC de VERSAILLES sous le numéro 828874156, titulaire de la carte de démarchage immobilier pour le compte de la société I@D France SAS.
Mandat : 2008742
Diagnostic de Performance Énergétique (DPE)
Plus d'informations
-
Descriptif
- Cave
- Nbre. d'étages : 5
- Nbre. de chambres : 2
- Nb. de pièces : 3
-
Equipement
- Digicode
- Chauffage : collectif gaz
- Interphone
-
Loi ALUR
- Copropriété
- Nombre de lots de la copropriété : 30
- Moyenne de la quote part(an) : 2 400 €
-
Conditions
- Honoraires à charge de : vendeur
-
Superficies
- Surface habitable : 46 m²
Localisation
Contactez nous
Pour plus d'informations sur cette annonce, n'hésitez pas à nous contacter