Vente
Appartement
à
Le Mée-sur-Seine
99 990 €
Le Mée-sur-Seine (77350)
iad France - Bettina Popa vous propose: **Vendu Loué**Superbe appartement T2 lumineux à Le Mée-sur-Seine - Idéal pour un un investissement locatif.
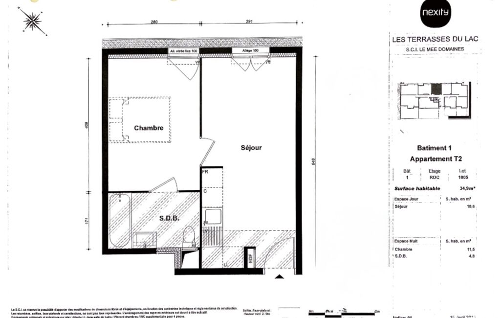
Découvrez ce charmant appartement de 34.9m², situé dans une résidence récente de 2015, offrant un cadre de vie moderne et agréable. Idéalement agencé, ce T2 comprend une chambre spacieuse, une salle de bain, un salon cosy et une kitchenette.
Cet appartement est situé au rez de chaussée d'un immeuble de 5 niveaux.
Les prestations de l'appartement sont de qualité : équipements modernes, chauffage par géothermie , double vitrage.
La résidence est fermée et sécurisée. De plus, vous disposez d'une place de parking privative, ce qui est un atout indéniable.
Situé à proximité des commerces, des écoles et des transports en commun, cet appartement bénéficie d'une situation géographique idéale.
Le loyer est de 588€ dont 98€ de provisions sur charges.
Ne manquez pas cette opportunité et contactez-nous pour organiser une visite dès maintenant.
La presente annonce immobiliere vise 2 lots situés dans une copropriété de 182 lots au total et ne faisant l'objet d'aucune procédure en cours citée à l'article L. 721-1 du code de la construction et de l'habitation. Montant moyen mensuel de charges déclaré par le vendeur : 108.33€ par mois (soit 1300 € annuel). Honoraires d'agence à la charge du vendeur.
Information d'affichage énergétique sur ce bien : classe ENERGIE C indice 178 et classe CLIMAT C indice 15. Les informations sur les risques auxquels ce bien est exposé, y compris l'obligation légale de débroussaillement, sont disponibles sur le site Géorisques : http://www.georisques.gouv.fr.
La présente annonce immobilière a été rédigée sous la responsabilité éditoriale de Mme Bettina Popa mandataire indépendant en immobilier (sans détention de fonds), agent commercial de la SAS I@D France immatriculé au RSAC de MELUN sous le numéro 830308128, titulaire de la carte de démarchage immobilier pour le compte de la société I@D France SAS.
Mandat : 1850576
Diagnostic de Performance Énergétique (DPE)
Plus d'informations
-
Descriptif
- Ascenseur
- Nbre. d'étages : 5
- Nbre. de chambres : 1
- Nb. Parking : 1
- Nb. de pièces : 2
-
Equipement
- Câble TV
- Digicode
- Interphone
-
Loi ALUR
- Copropriété
- Nombre de lots de la copropriété : 182
- Moyenne de la quote part(an) : 1 300 €
-
Etat
- Année de construction : 2015
-
Conditions
- Honoraires à charge de : vendeur
-
Superficies
- Surface habitable : 35 m²
Localisation
Contactez nous
Pour plus d'informations sur cette annonce, n'hésitez pas à nous contacter