Vente
Appartement
à
Montpellier
579 000 €
Montpellier (34070)
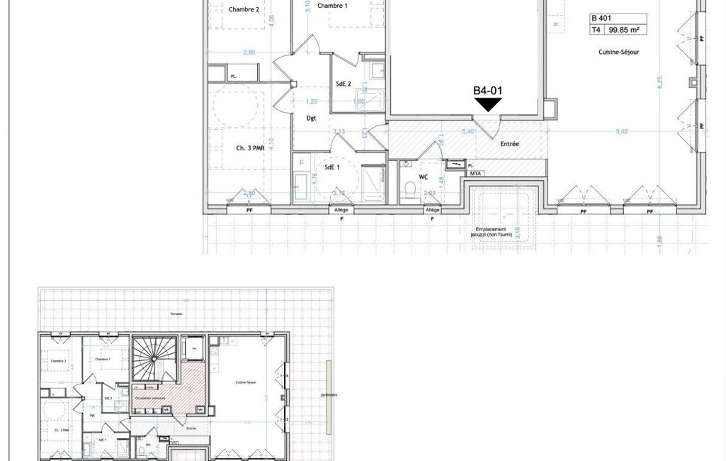
iad France - Lysiane Dupuy (06 25 91 23 68) vous propose : **Appartement T4 100 m² environ - Quartier de la Cité Créative**
OFFRE TVA 5,5% à 509?038 €
FRAIS DE NOTAIRE REDUITS A 2,5%
Découvrez ce superbe appartement de 100 m² environ, situé dans le quartier prisé de la Cité Créative. Il se compose de :
- 3 chambres spacieuses
- Cuisine ouverte sur le salon lumineux
- 2 salles d’eau dont une avec WC
- 1 WC séparé
La terrasse de 122m2 environ offre une vue exceptionnelle sur la ville, idéal pour vos moments de détente ou vos repas en extérieur. Un emplacement pour jacuzzi est même prévu !
Ce bien est vendu avec une place de parking au sous-sol.
Cet appartement allie confort, modernité et luminosité dans un emplacement recherché.
Une opportunité rare à ne pas manquer !
Contactez-moi pour une visite !
Honoraires d’agence à la charge du vendeur. Bien non soumis au DPE. Les informations sur les risques auxquels ce bien est exposé sont disponibles sur le site Géorisques : www.georisques.gouv.fr. La présente annonce immobilière a été rédigée sous la responsabilité éditoriale de Mlle Lysiane Dupuy EI (ID 93985), mandataire indépendant en immobilier (sans détention de fonds), agent commercial de la SAS I@D France immatriculé au RSAC de Nîmes sous le numéro 101879690, titulaire de la carte de démarchage immobilier pour le compte de la société I@D France SAS.
Retrouvez tous nos biens sur notre site internet. www.iadfrance.fr
Mandat : 1883527-1
Diagnostic de Performance Énergétique (DPE)
Plus d'informations
-
Conditions
- Honoraires à charge de : vendeur
-
Descriptif
- Nb. de pièces : 4
-
Superficies
- Surface habitable : 100 m²
Localisation
Contactez nous
Pour plus d'informations sur cette annonce, n'hésitez pas à nous contacter