Vente
Maison
à
Sainte-Maxime
1 470 000 €
Sainte-Maxime (83120)
iad France - Jérémy Bistagnin vous propose: *BIEN DE PRESTIGE*
Située à Sainte Maxime, entre Saint Tropez et Cannes, cette villa contemporaine d'architecte offre des prestations uniques :
- Résidence sécurisée au calme absolu, à proximité des commodités du centre ville de Sainte Maxime et de la mer.
- Exposition SUD, le salon et la cuisine sont baignés de lumière tout au long de la journée.
- Villa orientée autour de la piscine coté Sud et vue sur l'Esterel côté Nord.
- Magnifique terrain de 1390 m2 qui offre plusieurs stationnements de véhicules à l'entrée, et qui permet de profiter de l'ombre des Pins méditerranéens de l'autre côté.
- Domotique dernière génération : climatisation gainable dans toute la maison, volets roulants motorisés centralisés pour une tranquillité d'esprit, ballon thermodynamique.
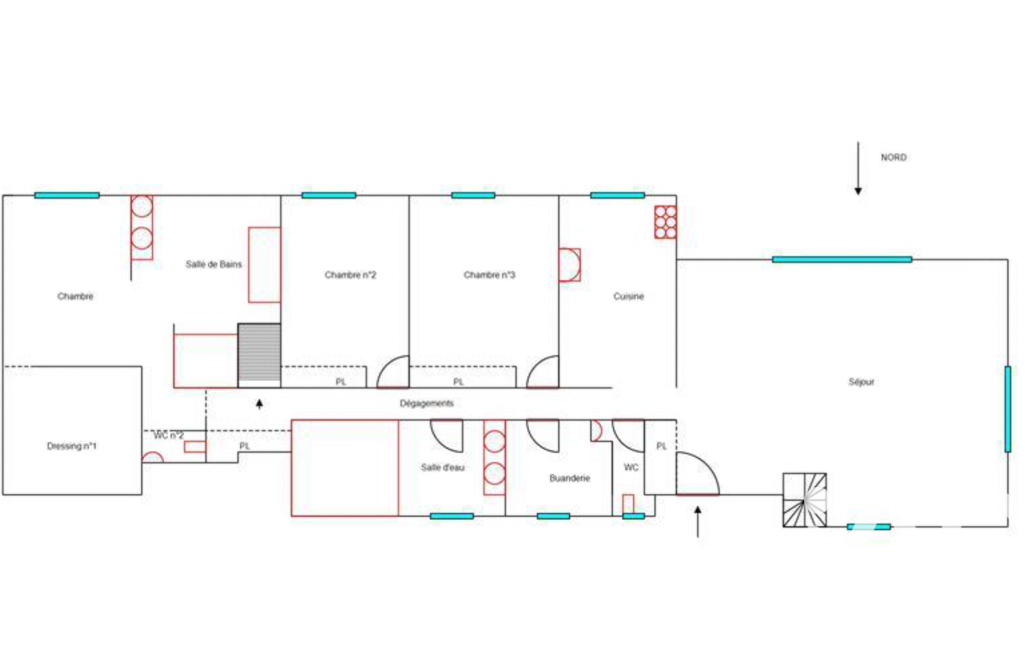
La maison de 207 m2 se compose de plein pied d'un spacieux salon (+ cuisine semi-ouverte) de 72m2, d'une grande chambre parentale de 22 m2 avec sa salle de bain privative, ainsi que de 3 chambres avec une salle d'eau commune.
Au sous sol, vous trouverez une chambre de 31m2 avec possibilité de créer une salle d'eau, ainsi qu'une seconde partie avec beaucoup de potentiel, possibilité d'ouvrir sur le jardin et de créer une nouvelle pièce.
Venez découvrir sans plus tarder ce bien d'exception, rare sur le marché immobilier...
La presente annonce immobiliere vise 1 lot situé dans une copropriété de 15 lots au total et ne faisant l'objet d'aucune procédure en cours citée à l'article L. 721-1 du code de la construction et de l'habitation. Montant moyen mensuel de charges déclaré par le vendeur : 100€ par mois (soit 1200 € annuel). Honoraires d'agence à la charge du vendeur.
Information d'affichage énergétique sur ce bien : classe ENERGIE B indice 72 et classe CLIMAT A indice 2. Les informations sur les risques auxquels ce bien est exposé, y compris l'obligation légale de débroussaillement, sont disponibles sur le site Géorisques : www.georisques.gouv.fr.
La présente annonce immobilière a été rédigée sous la responsabilité éditoriale de M Jérémy Bistagnin mandataire indépendant en immobilier (sans détention de fonds), agent commercial de la SAS I@D France immatriculé au RSAC de Fréjus sous le numéro 804950863, titulaire de la carte de démarchage immobilier pour le compte de la société I@D France SAS.
Mandat : 1581880
Diagnostic de Performance Énergétique (DPE)
Plus d'informations
-
Equipement
- Digicode
- Chauffage : electrique
- Interphone
- Climatisation
-
Descriptif
- Nbre. d'étages : 1
- Nbre. de chambres : 5
- Nb. de pièces : 7
-
Loi ALUR
- Copropriété
- Nombre de lots de la copropriété : 15
- Moyenne de la quote part(an) : 1 200 €
-
Superficies
- Superficie terrain : 1390 m²
- Surface habitable : 207 m²
-
Extérieur
- Piscine
-
Etat
- Année de construction : 2010
-
Conditions
- Honoraires à charge de : vendeur
Localisation
Contactez nous
Pour plus d'informations sur cette annonce, n'hésitez pas à nous contacter