Vente
Appartement
à
Paris
479 000 €
Paris (75012)
iad France - Aymeric Faillat vous propose: Proche métro Dugommier. T2 de 43m² entièrement rénové. Au 4ème avec ascenseur. Lumineux. Chauffage au sol connecté. Cave en sous-sol.
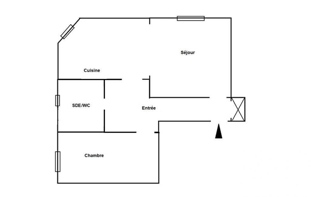
Situé au cOEur du 12ème arrondissement de Paris, cet appartement de 2 pièces entièrement rénové en 2020 allie charme et modernité.
Au 4ème étage d'un immeuble haussmannien bien entretenu et équipé d'un ascenseur, il se compose d'une grande pièce de vie de 20m² ouverte sur une cuisine américaine toute équipée. Son exposition ouest lui confère une luminosité naturelle très plaisante. Les moulures et colonnades donnent un cachet supplémentaire à ce bien.
Depuis l'entrée, un couloir dessert une salle de bain équipée d'une douche à l'italienne et d'une large vasque. Des vitraux sur-mesure y apportent lumière et caractère.
Une chambre séparée orientée sud-ouest complète ce bien.
Le chauffage individuel au sol présent dans tout l'appartement vous offrira confort et facilité d'utilisation tout au long de l'année.
Une cave en sous-sol de 6m² est également incluse pour vous permettre de bénéficier d'un espace de rangement supplémentaire.
Aucun travaux à prévoir pour l'appartement ou au sein de la copropriété.
Ce bien est idéal pour un couple ou un investisseur à la recherche d'un appartement clef en main, au cachet authentique, dans un quartier prisé et proche de toutes commodités. Une occasion à ne pas manquer !
La presente annonce immobiliere vise 1 lot situé dans une copropriété de 30 lots au total et ne faisant l'objet d'aucune procédure en cours citée à l'article L. 721-1 du code de la construction et de l'habitation. Montant moyen mensuel de charges déclaré par le vendeur : 122.77€ par mois (soit 1473.28 € annuel). Honoraires d'agence à la charge du vendeur.
Information d'affichage énergétique sur ce bien : classe ENERGIE E indice 313 et classe CLIMAT B indice 10. Les informations sur les risques auxquels ce bien est exposé, y compris l'obligation légale de débroussaillement, sont disponibles sur le site Géorisques : http://www.georisques.gouv.fr.
La présente annonce immobilière a été rédigée sous la responsabilité éditoriale de M Aymeric Faillat mandataire indépendant en immobilier (sans détention de fonds), agent commercial de la SAS I@D France immatriculé au RSAC de PARIS sous le numéro 991373846, titulaire de la carte de démarchage immobilier pour le compte de la société I@D France SAS.
Mandat : 1988021
Diagnostic de Performance Énergétique (DPE)
Plus d'informations
-
Descriptif
- Cave
- Étage du bien : 4eme
- Ascenseur
- Nbre. d'étages : 6
- Nbre. de chambres : 1
- Nb. de pièces : 2
-
Equipement
- Digicode
- Placards
- Chauffage : individuel electrique
- Interphone
-
Loi ALUR
- Copropriété
- Nombre de lots de la copropriété : 30
- Moyenne de la quote part(an) : 1 473.28 €
-
Conditions
- Honoraires à charge de : vendeur
-
Superficies
- Surface habitable : 42 m²
Localisation
Contactez nous
Pour plus d'informations sur cette annonce, n'hésitez pas à nous contacter