Vente
Loft
à
Saint-Ouen-sur-Seine
591 875 €
Saint-Ouen-sur-Seine (93400)
iad France - Marc Franc (07 80 36 67 20) vous propose : Votre LOFT PRESTIGE - 'TOUR NOVA'' à la porte de PARIS.
« TOUR LODS» à SAINT OUEN, la finesse contemporaine, harmonie de l'ancien à la signature de Marcel LODS, architecte avant-gardiste des années 30. La réhabilitation de ce bâtiment tertiaire, au style industriel, en logements de prestige, à la conception moderne, aux formes géométriques pures et élégantes, associant briques, verre et métal.
A l’exception des fenêtres, portes palières blindées, fibre internet et arrivées d’eau et d’électricité raccordées aux réseaux principaux, votre appartement est livré brut à aménager selon vos envies, vos goûts, votre style plutôt classique ou assurément design. Votre intérieur est à votre signature, unique en tout point. La plupart des lofts dispose d’un privilège supplémentaire, un agréable jardin d’hiver en lieu et place de l’ancien monte-charge.
Disponibilités
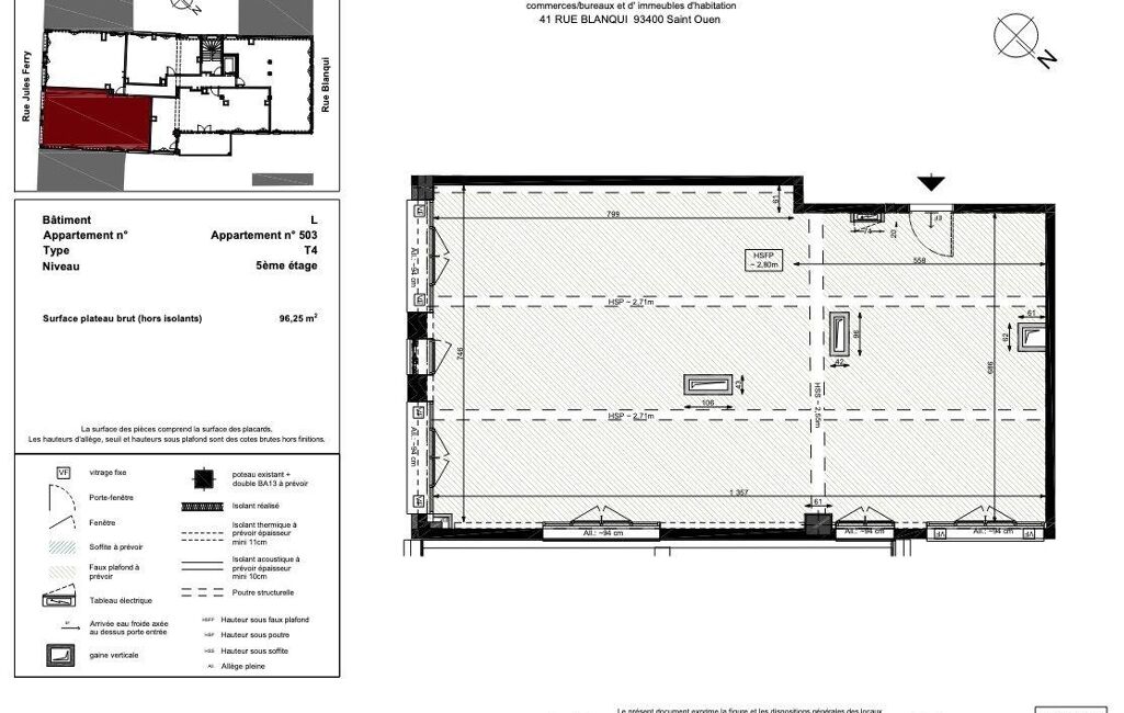
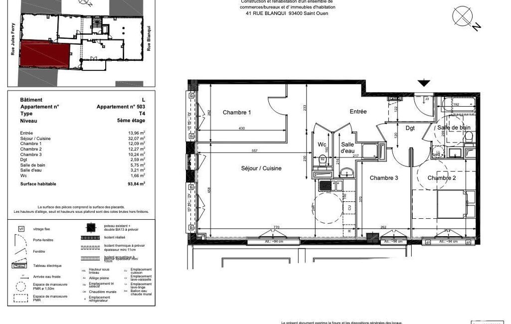
- de 84 à 96 m2 environ, aménageables en 3 ou 4 pièces
Règlementation Environnementale RT 2012. Livraison prévisionnelle 1er T 2026.
Contactez-moi pour en savoir plus !
Honoraires d’agence à la charge du vendeur. Bien non soumis au DPE. Les informations sur les risques auxquels ce bien est exposé sont disponibles sur le site Géorisques : www.georisques.gouv.fr. La présente annonce immobilière a été rédigée sous la responsabilité éditoriale de M. Marc Franc EI (ID 83540), mandataire indépendant en immobilier (sans détention de fonds), agent commercial de la SAS I@D France immatriculé au RSAC de VANNES sous le numéro 931732952, titulaire de la carte de démarchage immobilier pour le compte de la société I@D France SAS.
Retrouvez tous nos biens sur notre site internet. www.iadfrance.fr
Mandat : 1905091-9
Diagnostic de Performance Énergétique (DPE)
Plus d'informations
-
Conditions
- Honoraires à charge de : vendeur
-
Descriptif
- Nb. de pièces : 4
-
Superficies
- Surface habitable : 96 m²
Localisation
Contactez nous
Pour plus d'informations sur cette annonce, n'hésitez pas à nous contacter