Vente
Maison
à
Servigny-Lès-Sainte-Barbe
249 000 €
Servigny-Lès-Sainte-Barbe (57640)
iad France - Andy Gagliardi vous propose: Découvrez cette charmante maison individuelle en plain-pied surélevé , 6 pièces et 124m², sur un vaste terrain de 1482m² avec un garage, des caves et un poulailler dans le paisible village de Servigny-Lès-Sainte-Barbe.
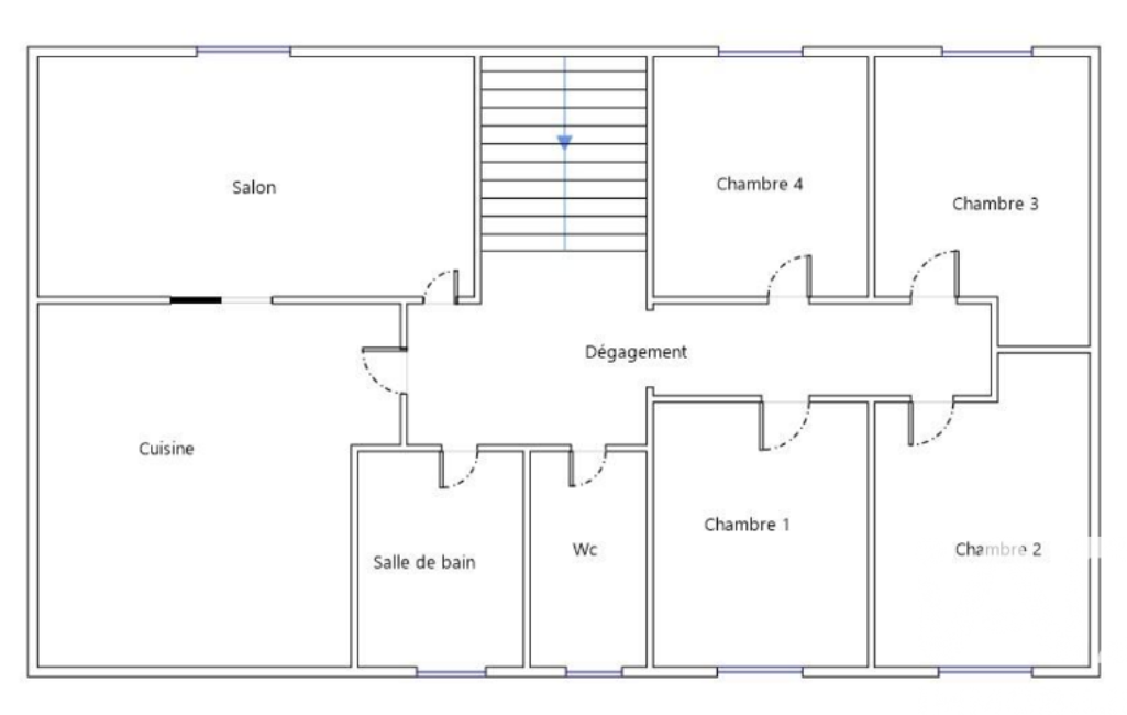
Au premier étage les pièces de vie: un lumineux séjour (21m²) ouvert sur un balcon (15m²), une cuisine équipée de plaque au gaz, hotte et four (14m²), Quatre chambres avec placards dressing encastrés (16m²,13m²,9m²,13m²), une salle de bain avec baignoire, bidet, lavabo ainsi qu'un WC individuel.
Le rez-de-jardin comprend: une cinquième chambre (11m²) près de l'entrée, une chaufferie, un spacieux garage muni d'un atelier (32m²), deux caves (16m² chacune). De plus le grenier sur dalle béton est aménageable.
L'extérieur est un jardin clos et piscinable avec une terrasse couverte (15m²) puis une dépendance bénéficiant d'une sublime vue sur les vergers biologiques.
Eléments de conforts: Fibre, chaudière fioul Atlantic (2023),citerne fioul 3000 L, radiateurs fonte, plancher chêne massif, murs en pierre de taille, tout à l'égout, porte entrée aluminium (2019).
Quelques travaux de mises au goût du jour à prévoir (rafraichissements, électricité, isolation.)
Localisation: Maison d'assistants maternels dans le village, ramassage scolaire vers Vany à quelques pas de la maison// 9 minutes de la zone commerciale de Metz Actipôle // 15 minutes de Metz //27 minutes de Thionville // 40 minutes du Luxembourg
Honoraires d'agence à la charge du vendeur.
Information d'affichage énergétique sur ce bien : classe ENERGIE F indice 289 et classe CLIMAT F indice 90. Les informations sur les risques auxquels ce bien est exposé, y compris l'obligation légale de débroussaillement, sont disponibles sur le site Géorisques : http://www.georisques.gouv.fr.
La présente annonce immobilière a été rédigée sous la responsabilité éditoriale de M Andy Gagliardi mandataire indépendant en immobilier (sans détention de fonds), agent commercial de la SAS I@D France immatriculé au RSAC de METZ sous le numéro 979782703, titulaire de la carte de démarchage immobilier pour le compte de la société I@D France SAS.
Mandat : 1992952
Diagnostic de Performance Énergétique (DPE)
Plus d'informations
-
Descriptif
- Cave
- Terrasse
- Nbre. d'étages : 2
- Nbre. de chambres : 5
- Nb. Parking : 1
- Nb. de pièces : 6
-
Equipement
- Câble TV
- Placards
- Chauffage : fuel radiateur
-
Superficies
- Superficie terrain : 1482 m²
- Surface habitable : 124 m²
-
Etat
- Année de construction : 1967
-
Conditions
- Honoraires à charge de : vendeur
Localisation
Contactez nous
Pour plus d'informations sur cette annonce, n'hésitez pas à nous contacter