Annonce détaillée

Vente
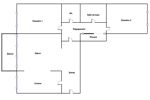
Appartement à Pantin
549 000 

Détails du bien

Pièce(s)
3 pièces
Salle(s) de bain
-
Surface
78 m²
Surface terrain
-
Orientation
-

Plus d'informations

  • Descriptif
    • Étage du bien : 6eme
    • Ascenseur
    • Nbre. d'étages : 9
    • Nb. de pièces : 3
  • Equipement
    • Câble TV
    • Digicode
    • Chauffage : collectif gaz radiateur
    • Interphone
  • Loi ALUR
    • Copropriété
    • Nombre de lots de la copropriété : 180
    • Moyenne de la quote part(an) : 3 660 €
  • Etat
    • Année de construction : 1970
  • Conditions
    • Honoraires à charge de : vendeur
  • Superficies
    • Surface habitable : 78 m²

Localisation

Contactez nous

Pour plus d'informations sur cette annonce, n'hésitez pas à nous contacter

Philippe Lamand

Annonce 602 / 73750