Vente
Maison de maître
à
Urrugne
780 000 €
Urrugne (64122)
iad France - Xavier Brault vous propose: EXCLUSIVITÉ – Maison 7 pièces avec piscine et vue montagne – Urrugne
À Urrugne, au calme, à moins de 10 min des plages, du centre de Saint-Jean-de-Luz et de Socoa, maison familiale de 160 m² habitables sur 4 270 m² de terrain.
Séjour lumineux avec vue montagne, véranda, accès direct à la terrasse et à la piscine.
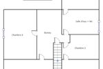
Cuisine séparée équipée, bureau, 5 chambres, salle de bain et salle d’eau.
Sous-sol semi-enterré : garage 94 m², buanderie 16 m², cellier 9 m².
Chauffage électrique – Assainissement autonome – Fibre
Environnement calme, beau potentiel.
Honoraires d'agence à la charge du vendeur.
Information d'affichage énergétique sur ce bien : classe ENERGIE D indice 201 et classe CLIMAT B indice 7. Les informations sur les risques auxquels ce bien est exposé, y compris l'obligation légale de débroussaillement, sont disponibles sur le site Géorisques : http://www.georisques.gouv.fr.
La présente annonce immobilière a été rédigée sous la responsabilité éditoriale de M Xavier Brault mandataire indépendant en immobilier (sans détention de fonds), agent commercial de la SAS I@D France immatriculé au RSAC de BAYONNE sous le numéro 838286771, titulaire de la carte de démarchage immobilier pour le compte de la société I@D France SAS.
Mandat : 1904064
Diagnostic de Performance Énergétique (DPE)
Plus d'informations
-
Descriptif
- Terrasse
- Nbre. d'étages : 3
- Nbre. de chambres : 5
- Nb. de pièces : 7
-
Equipement
- Câble TV
- Chauffage : electrique
-
Superficies
- Superficie terrain : 4270 m²
- Surface habitable : 160 m²
-
Extérieur
- Piscine
-
Etat
- Année de construction : 1989
-
Conditions
- Honoraires à charge de : vendeur
Localisation
Contactez nous
Pour plus d'informations sur cette annonce, n'hésitez pas à nous contacter