Vente
Maison
à
Reims
242 000 €
Reims (51100)
iad France - Gautier Delor vous propose: ***MAISON AVEC GARAGE ET JARDIN ***
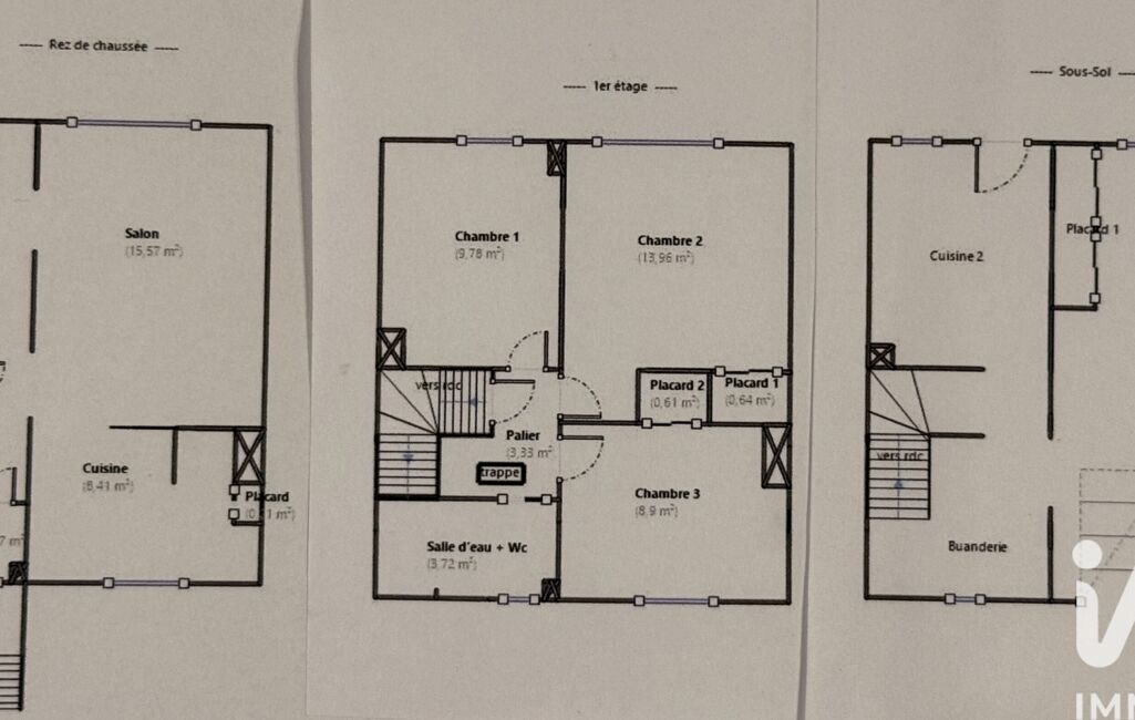
Situe Rue Louis de Broglie, venez découvrir cette jolie maison sur sous-sol complet.
Elle se compose au Rez-de-chaussée surélevé : d’une entrée, d’un salon, d’une salle à manger avec cuisine ouverte équipée et aménagée et d’un WC indépendant.
A l’étage : un palier dessert 3 chambres et une salle de douche avec WC.
Au sous-sol : vous retrouverez une partie garage de 23m² pour stationner un véhicule et motos, une buanderie et une cuisine d’été (16m² en plus non compris dans la surface habitable indiquée) donnant accès au jardin.
Jardin sur l’arrière de 110m² avec terrasse.
Cour sur le devant avec portail automatisé pouvant stationner 2 véhicules.
Les +++ : PAC réversible à l’étage (3 chambres), Fenêtres PVC double vitrage avec volets roulants électriques, combles isolés, alarme, fibre optique.
***AUCUN TRAVAUX A PRÉVOIR***
Honoraires d'agence à la charge du vendeur.
Information d'affichage énergétique sur ce bien : classe ENERGIE C indice 172 et classe CLIMAT B indice 6. Les informations sur les risques auxquels ce bien est exposé, y compris l'obligation légale de débroussaillement, sont disponibles sur le site Géorisques : http://www.georisques.gouv.fr.
La présente annonce immobilière a été rédigée sous la responsabilité éditoriale de M Gautier Delor mandataire indépendant en immobilier (sans détention de fonds), agent commercial de la SAS I@D France immatriculé au RSAC de SAINT QUENTIN sous le numéro 828487454, titulaire de la carte de démarchage immobilier pour le compte de la société I@D France SAS.
Mandat : 1974299
Diagnostic de Performance Énergétique (DPE)
Plus d'informations
-
Descriptif
- Cave
- Terrasse
- Nbre. d'étages : 2
- Nbre. de chambres : 3
- Nb. de pièces : 5
-
Superficies
- Surface terrasse : 15 m²
- Superficie terrain : 238 m²
- Surface habitable : 83 m²
-
Equipement
- Chauffage : electrique radiateur
-
Conditions
- Honoraires à charge de : vendeur
Localisation
Contactez nous
Pour plus d'informations sur cette annonce, n'hésitez pas à nous contacter