Vente
Appartement
à
Aubenas
355 000 €
Aubenas (07200)
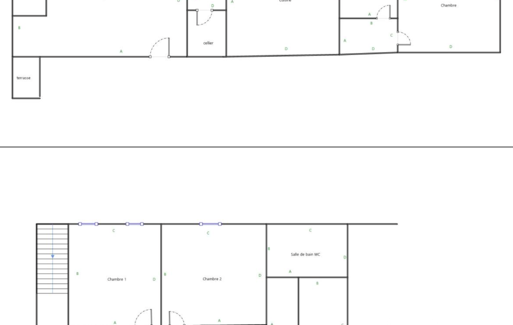
iad France - Sébastien Curinier vous propose: Au cOEur du centre-ville d’Aubenas, à deux pas du château, cet appartement de standing aux prestations rares. Acquis en 2018, il a fait l’objet d’une rénovation complète menée avec un soin tout particulier, tant dans le choix des matériaux que dans la qualité des finitions. Offrant près de 140 m² habitables, l’appartement séduit par ses volumes généreux et son agencement parfaitement maîtrisé. L’espace de vie, baigné de lumière tout au long de la journée, s’ouvre naturellement sur une agréable terrasse privative, véritable atout du bien, orientée vers l’arrière-cour du château et offrant un calme rare en plein centre-ville. Chaque détail a été pensé pour offrir un cadre de vie élégant, confortable et intemporel, faisant de ce bien une opportunité véritablement unique sur le secteur.
La distribution des espaces nuit a été intelligemment pensée afin de préserver l’intimité de chacun. Un niveau est dédié aux enfants avec leurs chambres et une salle de bain, tandis que la suite parentale prend place dans la continuité de l’espace de vie, créant un ensemble harmonieux et fluide. Cette organisation renforce le confort au quotidien et répond parfaitement aux attentes d’une vie de famille ou d’un projet résidentiel haut de gamme. Aucun espace n’est laissé au hasard, chaque mètre carré a été optimisé pour conjuguer esthétisme et fonctionnalité.
Luminosité, volumes, qualité de rénovation et emplacement central font de cet appartement un bien d’exception. Deux belles caves, et un débarras viennent compléter l’ensemble et offrent des espaces de stockage appréciables. Très peu de logements réunissent aujourd’hui de telles prestations, actuellement à la vente, sur Aubenas.
Une adresse confidentielle pour les amateurs de biens rares et atypiques. Un entretien téléphonique préalable sera indispensable avant toutes visites, pour plus d'informations ou planifier une visite, n’hésitez pas à me contacter.
La presente annonce immobiliere vise 3 lots situés dans une copropriété de 14 lots au total et ne faisant l'objet d'aucune procédure en cours citée à l'article L. 721-1 du code de la construction et de l'habitation. Montant moyen mensuel de charges déclaré par le vendeur : 31.36€ par mois (soit 376.32 € annuel). Honoraires d'agence à la charge du vendeur.
Information d'affichage énergétique sur ce bien : classe ENERGIE D indice 199 et classe CLIMAT B indice 6. Les informations sur les risques auxquels ce bien est exposé, y compris l'obligation légale de débroussaillement, sont disponibles sur le site Géorisques : http://www.georisques.gouv.fr.
La présente annonce immobilière a été rédigée sous la responsabilité éditoriale de M Sébastien Curinier mandataire indépendant en immobilier (sans détention de fonds), agent commercial de la SAS I@D France immatriculé au RSAC de Aubenas sous le numéro 440922813, titulaire de la carte de démarchage immobilier pour le compte de la société I@D France SAS.
Mandat : 1918719
Diagnostic de Performance Énergétique (DPE)
Plus d'informations
-
Descriptif
- Étage du bien : 1er
- Terrasse
- Nbre. d'étages : 2
- Nbre. de chambres : 4
- Nb. de pièces : 6
-
Loi ALUR
- Copropriété
- Nombre de lots de la copropriété : 14
- Moyenne de la quote part(an) : 376.32 €
-
Equipement
- Chauffage : individuel electrique radiateur
- Interphone
-
Etat
- Année de construction : 1900
-
Conditions
- Honoraires à charge de : vendeur
-
Superficies
- Surface habitable : 136 m²
Localisation
Contactez nous
Pour plus d'informations sur cette annonce, n'hésitez pas à nous contacter