Vente
Appartement
à
Montreuil
230 000 €
Montreuil (93100)
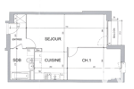
iad France - Laetitia Corteggiani vous propose: MONTREUIL - 2 PIÈCES - À Montreuil, dans un quartier pratique et en plein essor, découvrez ce joli deux pièces de 49,50 m² situé au 4ᵉ ÉTAGE avec ascenseur d’un IMMEUBLE RÉCENT de 2015.
Dès l’entrée, vous profitez d’un espace avec placard, idéal pour organiser facilement votre quotidien.
Le séjour, lumineux grâce à son exposition SUD-EST, s’accompagne d’une CUISINE OUVERTE à aménager, formant un bel espace de vie de 28 m2. Il donne accès à un petit BALCON avec VUE DÉGAGÉE, parfait pour profiter d’un extérieur.
L’appartement propose une CHAMBRE CONFORTABLE de 12,5 m2, ainsi qu’une salle de bain avec WC.
Le DOUBLE VITRAGE assure un bon confort thermique et acoustique.
Des travaux de rafraîchissement ainsi que l’installation de la cuisine sont à prévoir, laissant place à un beau potentiel de personnalisation.
Côté emplacement, la station de métro Montreuil Hôpital (ligne 11) est accessible à pied et permet de rejoindre directement la RÉPUBLIQUE ou CHÂTELET. Une ligne de tramway est prévue pour 2028 et sera accessible à seulement deux minutes à pied de l’immeuble.
Les COMMERCES DE PROXIMITÉ (supermarché, pharmacie…) se trouvent également à quelques minutes, facilitant votre quotidien.
Les charges comprennent le chauffage, l'eau chaude et l'eau froide.
Un bien LUMINEUX, FONCTIONNEL et ÉVOLUTIF, idéal pour un premier achat ou un investissement, qui saura séduire les acquéreurs attentifs aux opportunités et à la valorisation d’un bien (voir les propositions d'aménagement sur les photos en fin d'annonce).
La presente annonce immobiliere vise 1 lot situé dans une copropriété de 71 lots au total et ne faisant l'objet d'aucune procédure en cours citée à l'article L. 721-1 du code de la construction et de l'habitation. Montant moyen mensuel de charges déclaré par le vendeur : 193€ par mois (soit 2316 € annuel). Honoraires d'agence à la charge du vendeur.
Information d'affichage énergétique sur ce bien : classe ENERGIE C indice 76 et classe CLIMAT C indice 13. Les informations sur les risques auxquels ce bien est exposé, y compris l'obligation légale de débroussaillement, sont disponibles sur le site Géorisques : http://www.georisques.gouv.fr.
La présente annonce immobilière a été rédigée sous la responsabilité éditoriale de Mme Laetitia Corteggiani mandataire indépendant en immobilier (sans détention de fonds), agent commercial de la SAS I@D France immatriculé au RSAC de NICE sous le numéro 839327525, titulaire de la carte de démarchage immobilier pour le compte de la société I@D France SAS.
Mandat : 1974690
Diagnostic de Performance Énergétique (DPE)
Plus d'informations
-
Descriptif
- Étage du bien : 4eme
- Ascenseur
- Nbre. de chambres : 1
- Nb. de pièces : 2
-
Equipement
- Placards
- Chauffage : collectif gaz
- Interphone
-
Loi ALUR
- Copropriété
- Nombre de lots de la copropriété : 71
- Moyenne de la quote part(an) : 2 316 €
-
Etat
- Année de construction : 2015
-
Conditions
- Honoraires à charge de : vendeur
-
Superficies
- Surface habitable : 49 m²
Localisation
Contactez nous
Pour plus d'informations sur cette annonce, n'hésitez pas à nous contacter